Offers in region of
£495,000
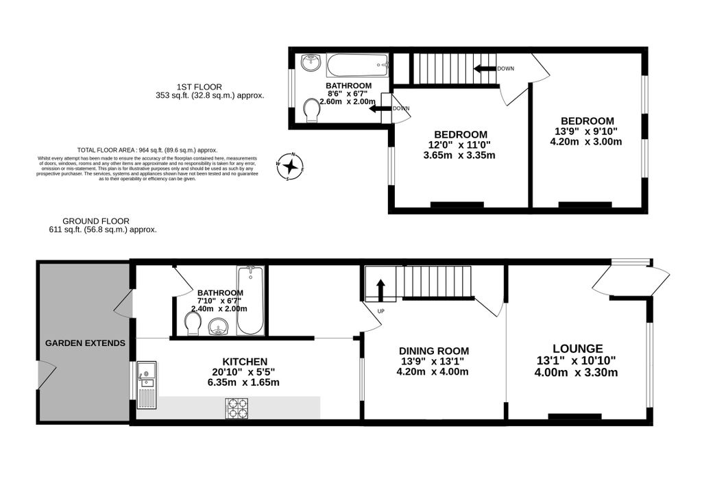
2 bed terraced house for saleRosebery Avenue, London N17
2 beds
2 baths
1 reception
Just added
Freehold
About this property
Private garden
On street/residents parking
A superb opportunity to acquire a well-located property in the heart of Tottenham, offering significant potential for investors, developers, or buyers looking to add value.
In need of modernisation throughout, this property presents a rare chance to refurbish and transform a well-proportioned home into a high-quality residence or investment asset. The scope for improvement allows purchasers to tailor the property to their own specification while maximising future returns.
Key Features:
Requires full modernisation – ideal value-add opportunity
Spacious layout with flexible living accommodation
Strong potential for refurbishment, reconfiguration, or extension (subject to planning permission)
Located on a quiet residential street
Excellent investment or development prospect
The property’s current condition has been reflected in the pricing, making it particularly attractive to investors seeking a project with strong upside potential. With the right vision, this could become a highly desirable home in an area of continued growth.
Location Highlights:
Convenient access to local shops, amenities, and schools
Well connected via nearby transport links into Central London
Situated in an increasingly popular and regenerating area
This is a fantastic opportunity to unlock value and create something special. Early viewing is strongly recommended
In need of modernisation throughout, this property presents a rare chance to refurbish and transform a well-proportioned home into a high-quality residence or investment asset. The scope for improvement allows purchasers to tailor the property to their own specification while maximising future returns.
Key Features:
Requires full modernisation – ideal value-add opportunity
Spacious layout with flexible living accommodation
Strong potential for refurbishment, reconfiguration, or extension (subject to planning permission)
Located on a quiet residential street
Excellent investment or development prospect
The property’s current condition has been reflected in the pricing, making it particularly attractive to investors seeking a project with strong upside potential. With the right vision, this could become a highly desirable home in an area of continued growth.
Location Highlights:
Convenient access to local shops, amenities, and schools
Well connected via nearby transport links into Central London
Situated in an increasingly popular and regenerating area
This is a fantastic opportunity to unlock value and create something special. Early viewing is strongly recommended
Mortgage calculator
Monthly repayment
£2,476 per month
Whole of market comparison
70+ lenders and 10,000+ products
The monthly repayments provided are estimates and should be used as a guide only. The actual amount you can borrow will depend on your personal financial situation and subject to a full application. For a more precise estimate, please use the Mojo mortgage calculator. Your home or property may be repossessed if you do not keep up repayments on your mortgage.


.png)