Offers over
£950,000
Land for saleNorwell, Newark NG23
About this property
Former farmyard with a range of agricultural buildings which have the benefit of planning consent granted for a comprehensive scheme of redevelopment.
Consent granted for change of use to residential, the erection of 5 dwellings and conversion of a traditional barn
Site splendidly situated with open countryside views to the front and rear
Extends in total to approximately 1.94 acres (0.79 of a hectare)
Two separate access points off Carlton Lane
Located approximately 0.60 of a mile from the sought after rural village of Norwell and approximately 9.0 miles north of the market town of Newark
For sale as a whole or in two separate lots
Guide Price For The Whole – Offers in excess of £950,000
Guide Price for Lot 1 – Offers in excess of £250,000
Guide Price for Lot 2 – Offers in excess of £700,000
The site is splendidly situated with open countryside views to the front and rear and extends in total to approximately 1.94 acres (0.79 of a hectare). It has the benefit of two separate access points off Carlton Lane and is located approximately 0.60 of a mile from the sought after rural village of Norwell and approximately 9.0 miles north of the market town of Newark.
The property is for sale as a whole or in two separate lots.
Location
The property is located 0.60 of a mile northeast of the rural village of Norwell which benefits from a public house, village shop, church and primary school. The site enjoys a private rural location and 9 miles to the northeast is the minister town of Southwell with its excellent schools and general amenities. It is also within easy reach of a range of recreational centres including Newark (11 miles), Nottingham (24 miles), and Leicester (46 miles). Nearby the A1 (2 miles) and Newark Northgate Station (9 miles) provide rapid access to a range of national centres with excellent train links to London (1 hour 14 minutes) and to Leeds and York.
Lot 1
Guide Price for Lot 1 – Offers in excess of £250,000
As shown edged red on the sale plan and extending to approximately 0.34 of an acre, this lot benefits from consent granted relating for alternative use of and conversion of a traditional range of brick buildings to residential use under planning application number 22/00452/ful. In terms of design concept, the scheme is based on a conversion of a traditional brick barn, conversion of a newer brick small outbuilding to an office/gym and use of a traditional/ extended brick/ block outbuilding for storage.
In terms of accommodation on the ground floor, the approved plans show an open planned living/ dining kitchen, w.c., snug, office, and bedroom with en-suite. To the first floor are three further bedrooms with one having an en-suite and a family bathroom. The home office, which benefits from underfloor heating provides a gym area, office, store room, shower, w.c and has potential subject to planning to be used as temporary accommodation during the conversion of the barn. To the southwest of the traditional range there is a brick/block outbuilding which will provide useful storage.
In terms of gross internal area (gia) the barn, home office/gym and outbuilding as approved will provide a total area of approximately 330.80 m2 (3,561 ft2).
Lot 2
Guide Price for Lot 2 – Offers in excess of £700,000
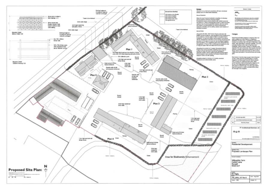
As shown edged blue on the sale plan and extending to approximately 1.60 acres. The Farmyard, was granted planning consent under application number 25/00107/ful and the consented proposal relates to the comprehensive redevelopment of the farmyard at Willoughby Farm which involves a number of developments to provide a total built footprint of 1,021.60 m2 (10,996 ft2) as follows:
•Change of Use of farmyard to residential
•Demolition of the modern farm buildings
•Complete redevelopment of the farmyard
•Erection of five dwellings and associated gardens and the erection of a detached garage relating to plot 5.
•Undertaking of associated infrastructure (including communal courtyard and widening of the existing access to Carlton Lane)
•Siting of community ground mounted Photovoltaic Panels to act as a community scheme for the site; and
•Requisite Biodiversity Net Gain Measures on the edge of the site.
Plot 1 - 4 bed - 238.60 m2 gia
Plot 2 - 4 bed - 364.50 m2 gia
Plot 3 - 4 bed - 290.00 m2 gia
Plot 4 - 4 bed - 346.00 m2 gia
Plot 5 - 3 bed plus garage - 184.60 m2 gia
Design Concept For Lot 2
In terms of design concept, the scheme is based on a faux farmyard consisting of traditional barns and a modern Dutch barn which all have the appearance of having been “converted”
PlotDesign Principle
1‘l’ shaped traditional brick and pantile building range with attached garage
2Modern Dutch barn with lean-to and integral garage
3Traditional brick and pantile threshing barn with integral garage
4Traditional brick and pantile farm building with cowshed including an integral garage
5Traditional brick and pantile farm cottage with detached double garage
Title & Tenure
The property is sold freehold with vacant possession granted upon completion.
Directions
The site if found when travelling from Norwell Village by turning northeast, signed Carlton on Trent where the site is located after approximately 1⁄2 of a mile on the right-hand side of the lane. When travelling from Carlton on Trent crossover the A1 signposted Ossington after approximately 1⁄4 of a mile, turn left, (south), signposted Norwell, after approximately 1 1⁄2 miles the plot may be found on the left-hand side. The entrance gateway to the site is indicated by a Whittaker and Biggs ‘For Sale’ sign.
Viewings
We ask that all viewings of the property are made via private appointment with the selling agent, by calling the office on telephone number or emailing
Services
The site is connected to a three phase mains supply of electricity, mains water and new private drainage system to be installed as part of the development.
Buyers are advised to make their own enquiries as to the cost and availability of connecting services before making an offer.
Access
Both lots have independent access off Carlton Lane.
Town And Country Planning Act
The property not withstanding any description contained in these particulars, is sold subject to any development plan, tree preservation order, town planning scheme or agreement, resolution or notice.
Planning References
Local Planning Authority - Newark & Sherwood District Council
Lot 1 – 22/00452/ful
Lot 2 – 25/00107/ful
Community Infrastructure Levy (Cil)
To be confirmed by the Local Authority.
Easements, Wayleaves And Rights Of Way
The land is sold subject to and with the benefit of all public and private rights of way, lights, drainage, cable, pylons or other easements, restrictions or obligations whether or not the same are described in these particulars of sale.
Sale Plan And Particulars
The sale plan is based on the Ordnance Survey sheet. Prospective purchasers should check the contract documents. The purchasers shall raise no objection or query in respect of any variation between the physical boundaries and the Ordnance Survey sheet plan. The plans are strictly for identification purposes only.
Money Laundering Legislation
In line with UK anti money laundering legislation, we are legally required to carry out checks on all purchasers. While the Rostons Group remains responsible for ensuring these checks and any ongoing monitoring are completed correctly, the initial anti money laundering checks are carried out on our behalf by Movebutler. Once you have had an offer accepted on a property you wish to buy, you will receive an email from Movebutler containing a secure link to complete the required checks. The cost of these checks is £30 (incl. VAT) per buyer. This fee covers the cost of obtaining the necessary data, along with any manual checks or monitoring that may be required. Payment is made directly to Movebutler and must be completed before we can issue a memorandum of sale. Please note that this fee is non refundable.
Selling Agents
Whittaker and Biggs
47-49 Derby Street
Leek
ST13 6HU
Tel: Email:
Local Council
Newark & Sherwood District Council
Castle House
Great North Road
Newark-on-Trent
NG24 1BY
Tel:
Mortgage calculator
£4,752 per month
70+ lenders and 10,000+ products
The monthly repayments provided are estimates and should be used as a guide only. The actual amount you can borrow will depend on your personal financial situation and subject to a full application. For a more precise estimate, please use the Mojo mortgage calculator. Your home or property may be repossessed if you do not keep up repayments on your mortgage.



.png)