Offers in region of
£220,000
4 bed property for saleSand Pit Lane, Alkborough DN15
4 beds
3 baths
2 receptions
EPC Rating: D
About this property
Highly desirable private village setting
Viewing is essential
River humber views
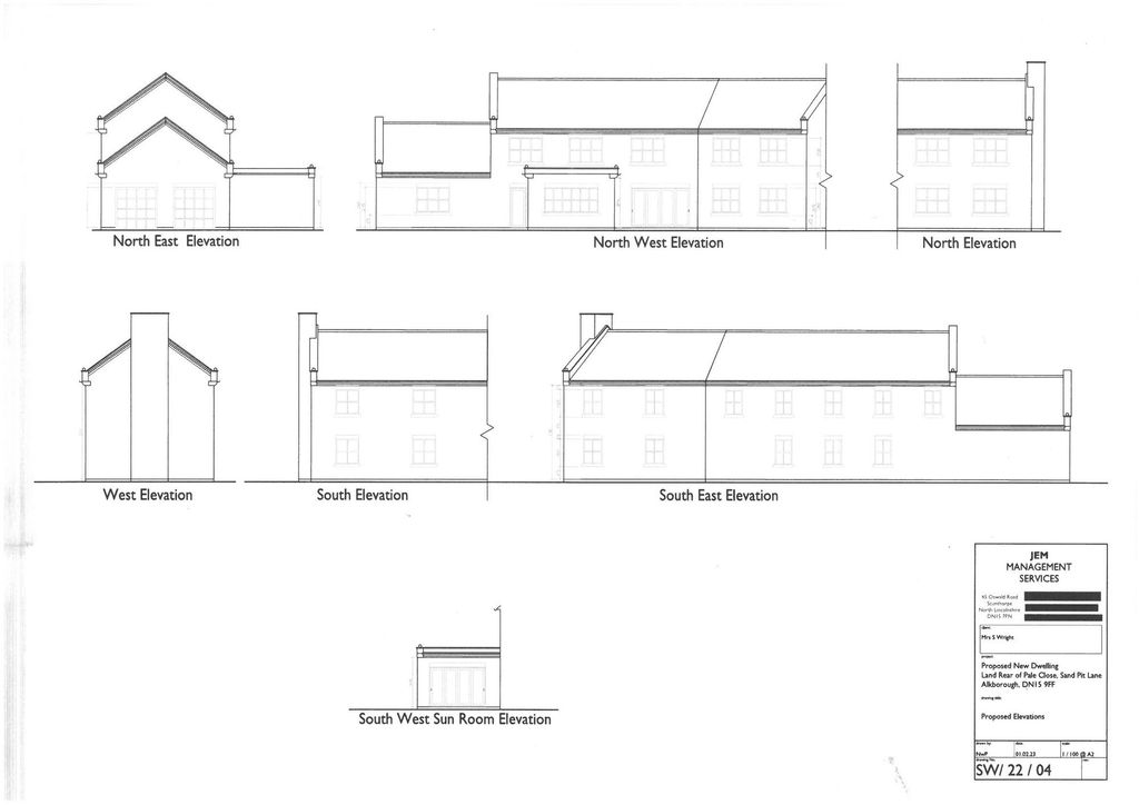
A superb residential building plot
Excellent opportunity to build your dream home
Pa/2023/144
Planning permission for A stylish detached house
EPC Rating: D
Mortgage calculator
£1,100 per month
70+ lenders and 10,000+ products
The monthly repayments provided are estimates and should be used as a guide only. The actual amount you can borrow will depend on your personal financial situation and subject to a full application. For a more precise estimate, please use the Mojo mortgage calculator. Your home or property may be repossessed if you do not keep up repayments on your mortgage.
More information
Tenure
Freehold
Council tax band
Council tax band not yet known
Ground rent
£0



.png)