Guide price
£300,000
Property for saleEndsleigh Terrace, Liskeard PL14
Freehold
About this property
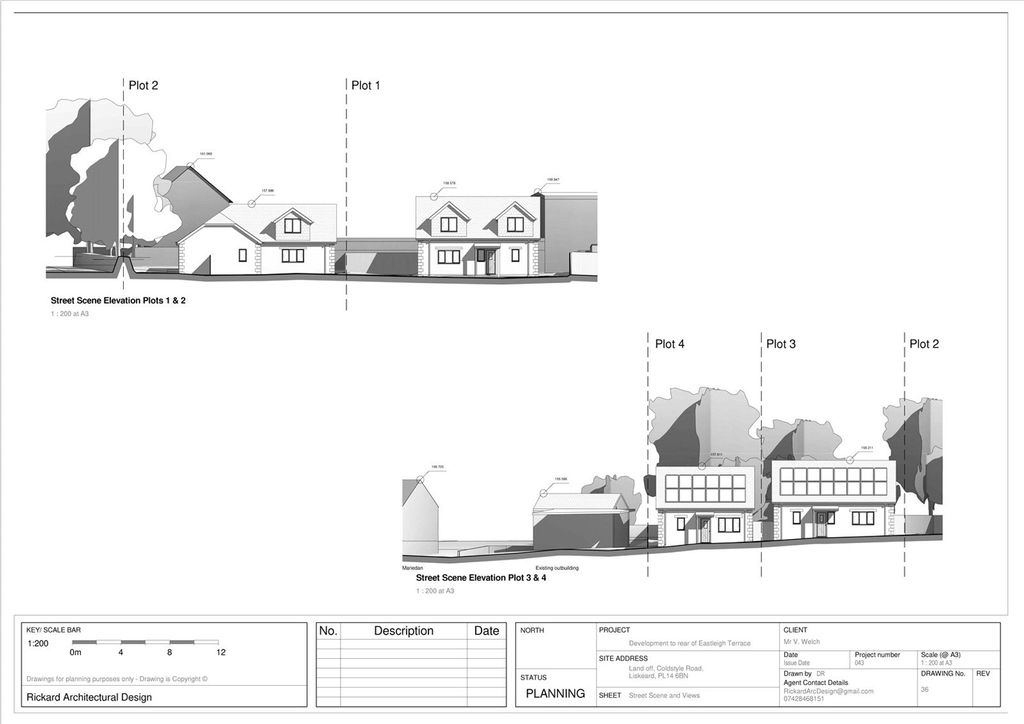
Development opportunity for a mixture of four detached dwellings
Generous level site of approximately 0.5 acres
Conveniently positioned on the outskirts of Liskeard Town Centre
DescriptionSituated on the periphery of Liskeard town centre, this fantastic development opportunity is available for the construction of four detached dwellings in a peaceful accessible location.With good vehicular access, the level site is bordered by a mix of residential dwellings, having mains services within close proximity.The properties are located within a popular residential area with multiple local amenities within walking distance of the site.PlanningThe full application details including the drawings and any other relevant or associated documents can be viewed online via Application number PA24/02251 Alternatively full details can be obtained via our Liskeard office. DirectionsThe land can be identified by a Kivells ‘For Sale’ board.what3words - poorly.slick.denserViewingsInterested parties must contact the Liskeard Kivells office to arrange a viewing. ServicesProspective purchasers must verify availability for any mains services required and the costs of connection of such services, for themselves. Agent’s NoteThere is the potential for the site to be split and 3 of the 4 dwellings be sold as a lot.Contact UsKivells, 7-8 Bay Tree Hill, Liskeard, Cornwall PL14 4BE. Other InformationTenureFreehold with vacant possession upon completion. Local AuthorityCornwall Council, Chy Trevail, Beacon Technology Park, Bodmin, Cornwall PL31 2FR.Easements, Wayleaves, Rights of WayThe property is offered for sale, subject to and with the benefit of all matters contained in or referred to in the Property and Charges Register of the registered title together with all public or private rights of way, wayleaves, easements and other rights of way, which cross the property.BoundariesAny purchaser shall be deemed to have full knowledge of all boundaries and neither vendor nor the vendor’s agents will be responsible for defining the boundaries or the ownership thereof. Should any dispute arise as to the boundaries or any points on the particulars or plans or the interpretation of them, the question shall be referred to the vendor’s agent whose decision acting as experts shall be final. Plan of the LandThe plan is based on an indicative, and the areas are not guaranteed. Purchasers must satisfy themselves as to their accuracy.Location and Land Plans Not to scale and for identification purposes only.
Disclaimer
Kivells, their clients and any joint agents give notice that they are not authorised to make or give representations or warranties in relation to the property. No responsibility is accepted for any statement within these particulars, which do not form part of any offer or contract. Areas, measurements and boundaries are approximate. Text, photographs, CGI’s and plans are for guidance only. It should not be assumed the property has all necessary planning or building consents, and Kivells have not tested any services or equipment. The property is sold subject to all matters in the Property and Charges Register, including rights of way and easements. Purchasers are deemed to know all boundaries. Nothing herein constitutes financial advice; seek your own. Use of Mortgage Genies sw Ltd. Will result in a £250 + VAT referral fee to Kivells. Kivells retains copyright to all particulars and media.
Disclaimer
Kivells, their clients and any joint agents give notice that they are not authorised to make or give representations or warranties in relation to the property. No responsibility is accepted for any statement within these particulars, which do not form part of any offer or contract. Areas, measurements and boundaries are approximate. Text, photographs, CGI’s and plans are for guidance only. It should not be assumed the property has all necessary planning or building consents, and Kivells have not tested any services or equipment. The property is sold subject to all matters in the Property and Charges Register, including rights of way and easements. Purchasers are deemed to know all boundaries. Nothing herein constitutes financial advice; seek your own. Use of Mortgage Genies sw Ltd. Will result in a £250 + VAT referral fee to Kivells. Kivells retains copyright to all particulars and media.
Mortgage calculator
Monthly repayment
£1,500 per month
Whole of market comparison
70+ lenders and 10,000+ products
The monthly repayments provided are estimates and should be used as a guide only. The actual amount you can borrow will depend on your personal financial situation and subject to a full application. For a more precise estimate, please use the Mojo mortgage calculator. Your home or property may be repossessed if you do not keep up repayments on your mortgage.
More information
Tenure
Freehold
Council tax band
Council tax band not yet known
Ground rent
£0



.png)