Offers over
£3,000,000
Land for saleHorebeech Lane, Horam, Heathfield, East Sussex TN21
New home
About this property
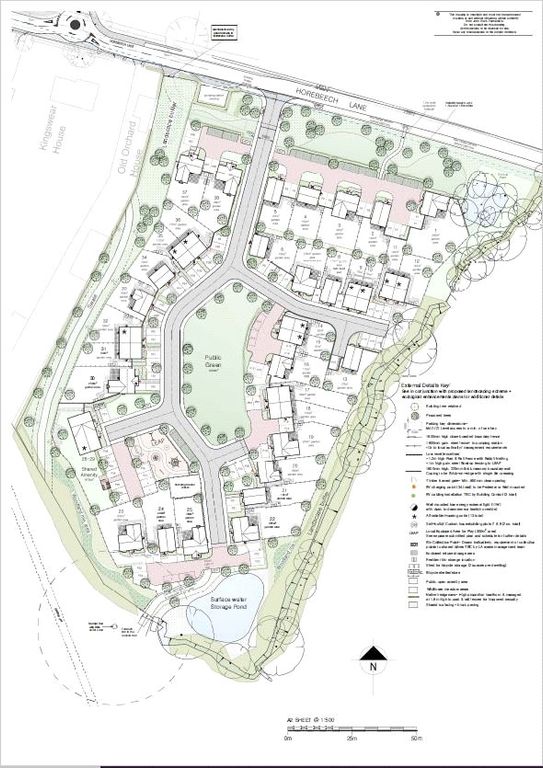
Residential development for 38 dwellings with planning permission
Proposed scheme
An exceptional and ‘oven-ready’ opportunity to create 38 new homes (34 houses and 4 apartments) in the desirable and well-connected village of Horam, East Sussex. The site benefits from a live, implementable planning consent and the discharge of all key conditions. This ensures the development is immediately deliverable, allowing the purchaser to move directly to the construction phase.
Furthermore, all the units can be sold as private sale, with the option for either a commuted payment or the scheme can provide an onsite affordable provision of 13 units.
Location
Horam is a vibrant village in the Wealden District of East Sussex, situated three miles south of Heathfield and is in the parish of settlements including Vines Cross and Burlow. It lies in the Low Weald and is close to the southern boundary of the High Weald Area of Outstanding Natural Beauty (aonb). The village has good road links with the A267 linking Tunbridge Wells and Eastbourne. It is also served by various routes of the Eastbourne Bus company.
The site lies to the east of the village of Horam on Horebeech Lane, adjacent to the famous Cuckoo Trail and is well served by existing vehicular pedestrian and cycle links. Located approximately 12 minutes’ walk from Horam High Street which provides local amenities including café, pub, post office, pharmacy, convenience store, garage, hairdressers, dentist, vet, and a range of independent shops.
Detailed Information Pack Available Upon Request.
Proposed scheme
An exceptional and ‘oven-ready’ opportunity to create 38 new homes (34 houses and 4 apartments) in the desirable and well-connected village of Horam, East Sussex. The site benefits from a live, implementable planning consent and the discharge of all key conditions. This ensures the development is immediately deliverable, allowing the purchaser to move directly to the construction phase.
Furthermore, all the units can be sold as private sale, with the option for either a commuted payment or the scheme can provide an onsite affordable provision of 13 units.
Location
Horam is a vibrant village in the Wealden District of East Sussex, situated three miles south of Heathfield and is in the parish of settlements including Vines Cross and Burlow. It lies in the Low Weald and is close to the southern boundary of the High Weald Area of Outstanding Natural Beauty (aonb). The village has good road links with the A267 linking Tunbridge Wells and Eastbourne. It is also served by various routes of the Eastbourne Bus company.
The site lies to the east of the village of Horam on Horebeech Lane, adjacent to the famous Cuckoo Trail and is well served by existing vehicular pedestrian and cycle links. Located approximately 12 minutes’ walk from Horam High Street which provides local amenities including café, pub, post office, pharmacy, convenience store, garage, hairdressers, dentist, vet, and a range of independent shops.
Detailed Information Pack Available Upon Request.
Mortgage calculator
Monthly repayment
£15,007 per month
Whole of market comparison
70+ lenders and 10,000+ products
The monthly repayments provided are estimates and should be used as a guide only. The actual amount you can borrow will depend on your personal financial situation and subject to a full application. For a more precise estimate, please use the Mojo mortgage calculator. Your home or property may be repossessed if you do not keep up repayments on your mortgage.
More information
Tenure
Council tax band
A band has not yet been confirmed.



.png)