Guide price
£735,000
4 bed detached house for saleAbberley, Worcester, Worcestershire WR6
4 beds
New home
About this property
Maple House is a striking and spacious 4 bedroom detached home with private driveway and double garage.
Maple House
Maple house is modern masterpiece, being built to an extremely high standard throughout.
The ground floor has been expertly designed to meet the needs of modern living. The impressive open plan kitchen/dining/living room space flows seamlessly from the reception hallway and the bifold doors lead you directly on to the patio area where you can take in fabulous views of the Clee Hills.
The exceptional kitchen features an integrated dishwasher and fridge/freezer, along with 2 Bosch single ovens and a 5-zone induction hob. Stone worktops, under cupboard and plinth lighting are standard. The space is further enhanced by a central island that acts as the focal point of this superb room. A separate utility room is located off the kitchen with a door leading directly outside.
Continuing off the hallway, you will find the cloakroom. At the front of the property, there is a cosy snug that doubles as an office, perfect for working from home in addition to a further lounge/sitting room.
The first floor is bathed in natural light and features a spacious landing area that leads to four double bedrooms and the main family bathroom. The family bathroom includes a three-piece white suite, a heated towel rail, and a choice of wall tiles (depending on the build stage). The principal and second bedrooms both have fitted wardrobes and luxurious ensuite shower rooms.
Externally, the property offers a spacious private driveway, a double garage, and an EV car charging point. The garden is laid to lawn, while the Indian stone patio is ideal space for outdoor entertaining. Additional features include an outside tap and an external plug socket. Seize the chance to make this beautiful property yours. Contact us today to schedule a viewing.
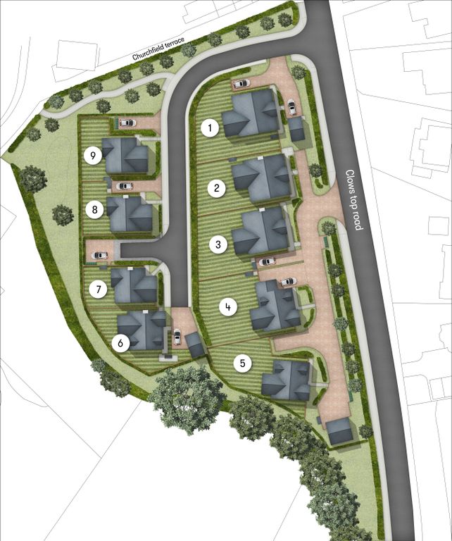
Abberley Meadows
An exclusive semi-rural development of just 9 new homes offering a selection of beautifully appointed 2,3 and 4 bedroom homes
Location
Perfectly positioned, Abberley Meadows is located on the edge of the picturesque village of Abberley in the beautiful and unspoilt North Worcestershire countryside, perfectly located between Worcester and Tenbury Wells. The village has a rich history and is spread across three areas – the village, based around the remains of the 12th Century church, and the location of the village hall; the Hill, housing the replacement church and from where there are far reaching views of the surrounding countryside, and the Common, which is the most recent part and where you will find the primary school and the village shop. Abberley Village Hall offers a range of activities within the community including Pilates and yoga to name a few.
The Wyre Forest towns of Bewdley, Stourport and Kidderminster are all within easy driving distance for a more extensive array of amenities. Stourport offers three supermarkets for your shopping needs – Tesco, Morrisons and Lidl, whilst Bewdley offers the West Midlands Safari Park as well as scenic river walks with an array of food and drink establishments, perfect for a sunny evening or a Sunday stroll. Further afield, just twelve miles away, you have the Cathedral City of Worcester which offers a vast selection of food, drink, entertainment, and sporting opportunities as well as many independent retailers, alongside the major high street chains. You will also find the Malvern Hills and The Wyre Forest Nature Reserve withing easy driving access.
Hartlebury (7 Miles) and Kidderminster (8 miles) both have train stations serving the local rail network. From Worcester train services to Birmingham and London run frequently, with the London journey just over two hours. The M5 J7 (14.7 miles) is the nearest motorway access, and this offers easy commuting from here to the Midlands motorway network and beyond. Birmingham Airport is 39.6 miles away and takes just over one hour.
Disclaimer: Please be aware that the images shown are computer generated and are for indicative purposes only.
Maple House
Maple house is modern masterpiece, being built to an extremely high standard throughout.
The ground floor has been expertly designed to meet the needs of modern living. The impressive open plan kitchen/dining/living room space flows seamlessly from the reception hallway and the bifold doors lead you directly on to the patio area where you can take in fabulous views of the Clee Hills.
The exceptional kitchen features an integrated dishwasher and fridge/freezer, along with 2 Bosch single ovens and a 5-zone induction hob. Stone worktops, under cupboard and plinth lighting are standard. The space is further enhanced by a central island that acts as the focal point of this superb room. A separate utility room is located off the kitchen with a door leading directly outside.
Continuing off the hallway, you will find the cloakroom. At the front of the property, there is a cosy snug that doubles as an office, perfect for working from home in addition to a further lounge/sitting room.
The first floor is bathed in natural light and features a spacious landing area that leads to four double bedrooms and the main family bathroom. The family bathroom includes a three-piece white suite, a heated towel rail, and a choice of wall tiles (depending on the build stage). The principal and second bedrooms both have fitted wardrobes and luxurious ensuite shower rooms.
Externally, the property offers a spacious private driveway, a double garage, and an EV car charging point. The garden is laid to lawn, while the Indian stone patio is ideal space for outdoor entertaining. Additional features include an outside tap and an external plug socket. Seize the chance to make this beautiful property yours. Contact us today to schedule a viewing.
Abberley Meadows
An exclusive semi-rural development of just 9 new homes offering a selection of beautifully appointed 2,3 and 4 bedroom homes
Location
Perfectly positioned, Abberley Meadows is located on the edge of the picturesque village of Abberley in the beautiful and unspoilt North Worcestershire countryside, perfectly located between Worcester and Tenbury Wells. The village has a rich history and is spread across three areas – the village, based around the remains of the 12th Century church, and the location of the village hall; the Hill, housing the replacement church and from where there are far reaching views of the surrounding countryside, and the Common, which is the most recent part and where you will find the primary school and the village shop. Abberley Village Hall offers a range of activities within the community including Pilates and yoga to name a few.
The Wyre Forest towns of Bewdley, Stourport and Kidderminster are all within easy driving distance for a more extensive array of amenities. Stourport offers three supermarkets for your shopping needs – Tesco, Morrisons and Lidl, whilst Bewdley offers the West Midlands Safari Park as well as scenic river walks with an array of food and drink establishments, perfect for a sunny evening or a Sunday stroll. Further afield, just twelve miles away, you have the Cathedral City of Worcester which offers a vast selection of food, drink, entertainment, and sporting opportunities as well as many independent retailers, alongside the major high street chains. You will also find the Malvern Hills and The Wyre Forest Nature Reserve withing easy driving access.
Hartlebury (7 Miles) and Kidderminster (8 miles) both have train stations serving the local rail network. From Worcester train services to Birmingham and London run frequently, with the London journey just over two hours. The M5 J7 (14.7 miles) is the nearest motorway access, and this offers easy commuting from here to the Midlands motorway network and beyond. Birmingham Airport is 39.6 miles away and takes just over one hour.
Disclaimer: Please be aware that the images shown are computer generated and are for indicative purposes only.



.png)