Guide price
£400,000
Land for saleStone, Berkeley GL13
New home
Freehold
About this property
Residential Development Opportunity
Village Location, Convenient For M5 J14
‘Construction Of Two New Dwellings’
Planning Ref: S.23/2517/ful (Dated: 22/10/2024)
Two Detached Houses, With Integral Garages
Gardens And Off-Street Parking
Three Bedrooms, Two En-Suite, Family bathroom
Open-Plan Triple/Quadruple-Aspect Living Space
Fitted Kitchen, Cloakroom
Shared Access With Existing Barn Conversion
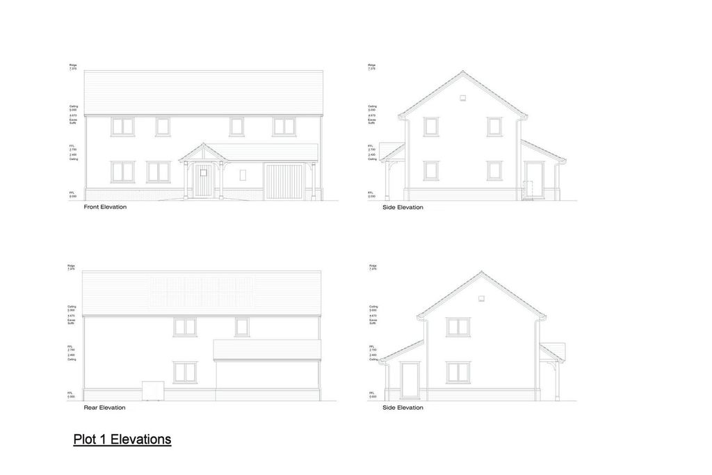
Residential development opportunity in a desirable location off the A38, near the village green, primary school and parish church. Convenient For M5 Junction 14 at Falfield and the market town of Thornbury to the south. Planning Ref:S.23/2517/ful (Dated: 22/10/2024) for the ‘Construction Of Two New Dwellings’. The submitted plans show two detached houses, with integral garages, gardens and off-street parking. The accommodation for each includes three bedrooms, two en-suite shower rooms and a family bathroom with separate shower cubicle. Downstairs is an open-plan triple/quadruple-aspect living space (depending upon which plot), a fitted kitchen and a cloakroom. Access will be shared with the adjacent existing barn conversion. All viewing strictly by prior appointment.
The village of Stone is situated approximately 1 mile from junction 14 of the M5 ideal for commuting to Gloucester to the north and Bristol to the south. In the last Ofsted report the local primary school in the village was rated ‘Outstanding’. Secondary schools include The Castle School in Thornbury and Katharine Lady Berkeley’s in Kingswood. In nearby Falfield, approximately one mile away, is a general stores and post office and Thornbury with it’s range of amenities is approximately 4 miles distance providing supermarkets, post office, restaurants and Leisure Centre/Golf Club.
The village of Stone is situated approximately 1 mile from junction 14 of the M5 ideal for commuting to Gloucester to the north and Bristol to the south. In the last Ofsted report the local primary school in the village was rated ‘Outstanding’. Secondary schools include The Castle School in Thornbury and Katharine Lady Berkeley’s in Kingswood. In nearby Falfield, approximately one mile away, is a general stores and post office and Thornbury with it’s range of amenities is approximately 4 miles distance providing supermarkets, post office, restaurants and Leisure Centre/Golf Club.



.png)