Offers over
£100,000
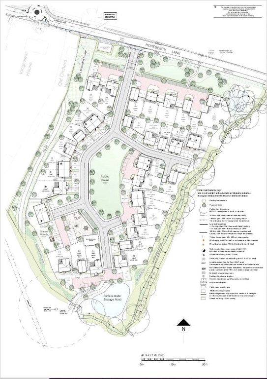
Land for saleHorebeech Lane, Horam, Heathfield, East Sussex TN21
New home
About this property
Exciting Development Opportunity for a Custom Build Plot on a New Development Site located in the Attractive Village of Horam
Proposal
The Proposal Outline planning permission has been granted to establish the principles of this proposed development on Horebeech Lane, Outline planning permission and reserve matters has been granted for this proposed development on Horebeech Lane, Horam, East Sussex TN21 9DZ. (wd/2021/2356/mao; Planning Inspectorate app/C1435/W/22/329737). The developer will be responsible for delivering any communal highways and landscaping works and installing utilities before custom or self-builders get underway.
Location
Horam is a vibrant village in the Wealden District of East Sussex, situated three miles south of Heathfield and is in the parish of settlements including Vines Cross and Burlow. It lies in the Low Weald and is close to the southern boundary of the High Weald Area of Outstanding Natural Beauty (aonb). The village has good road links with the A267 linking Tunbridge Wells and Eastbourne. It is also served by various routes of the Eastbourne Bus company.
The site lies to the east of the village of Horam on Horebeech Lane, adjacent to the famous Cuckoo Trail and is well served by existing vehicular pedestrian and cycle links. Located approximately 12 minutes’ walk from Horam High Street which provides local amenities including café, pub, post office, pharmacy, convenience store, garage, hairdressers, dentist, vet, and a range of independent shops.
Detailed Information Pack Available Upon Request.
Proposal
The Proposal Outline planning permission has been granted to establish the principles of this proposed development on Horebeech Lane, Outline planning permission and reserve matters has been granted for this proposed development on Horebeech Lane, Horam, East Sussex TN21 9DZ. (wd/2021/2356/mao; Planning Inspectorate app/C1435/W/22/329737). The developer will be responsible for delivering any communal highways and landscaping works and installing utilities before custom or self-builders get underway.
Location
Horam is a vibrant village in the Wealden District of East Sussex, situated three miles south of Heathfield and is in the parish of settlements including Vines Cross and Burlow. It lies in the Low Weald and is close to the southern boundary of the High Weald Area of Outstanding Natural Beauty (aonb). The village has good road links with the A267 linking Tunbridge Wells and Eastbourne. It is also served by various routes of the Eastbourne Bus company.
The site lies to the east of the village of Horam on Horebeech Lane, adjacent to the famous Cuckoo Trail and is well served by existing vehicular pedestrian and cycle links. Located approximately 12 minutes’ walk from Horam High Street which provides local amenities including café, pub, post office, pharmacy, convenience store, garage, hairdressers, dentist, vet, and a range of independent shops.
Detailed Information Pack Available Upon Request.
Mortgage calculator
Monthly repayment
£500 per month
Whole of market comparison
70+ lenders and 10,000+ products
The monthly repayments provided are estimates and should be used as a guide only. The actual amount you can borrow will depend on your personal financial situation and subject to a full application. For a more precise estimate, please use the Mojo mortgage calculator. Your home or property may be repossessed if you do not keep up repayments on your mortgage.
More information
Tenure
Council tax band
A band has not yet been confirmed.



.png)