Guide price
£213,750
2 bed terraced house for saleLangley Park, Foundry Lane, Chippenham, Wiltshire SN15
2 beds
1 bath
New home
Shared ownership
About this property
Shared ownership 2 Bed house available to purchase at a 75% share of £285,000 with a minimum 5% mortgage deposit of £10,687.50. Shares available from 25%-75%
Example:
Full Market Value: £285,000
75% Share Price: £213,750
5% Deposit: £10,687.50
Rent on un-owned share: £163.23 pcm
Estimated estate charge tbc pcm
Discover The Akins, a beautifully designed two-bedroom home available through shared ownership-perfect for first-time buyers or those looking to step onto the property ladder
Langley Park presents the most centrally located new home development in Chippenham, offering unparalleled convenience just a 3-minute walk from the train station. This prime position ensures effortless commutes, with Bath Spa only 15 minutes away and Bristol Temple Meads reachable in just 30 minutes. Chippenham is an ideal family destination, offering both immediate advantages and long-term benefits. Its vibrant high street and nearby retail parks provide a diverse array of supermarkets, popular high street brands, and unique independent shops and cafes.
The area also benefits from excellent access to high performing local schools:-
Ivy Lane Primary, Monkton Park Primary, Redland Primary, all rated Good by Ofsted, within a mile.
Secondary education covered by Hardenhuish School, Abbeyfield School & Sixth Form, Sheldon School - all Good rated and less than ~1.5 miles away.
Further education options via Wiltshire College & University Centre, just ~0.3 miles from your doorstep.
Green spaces and parks are close by:-
Just a few minutes’ walk to John Coles Park and Monkton Park-perfect for morning jogs, leisurely walks, or letting children run free.
A wealth of play options: Four major play areas with Multi-Use Games Areas (muga), including at The Arc Park and Pewsham Park.
Generous open spaces and woodland trails at Westmead Open Space and Borough Lands, ideal for nature lovers, dog walkers, or weekend picnics.
Outdoor facilities complemented by community cafés, art & sculpture trails, climbing & skatepark - active, social, and family-friendly.
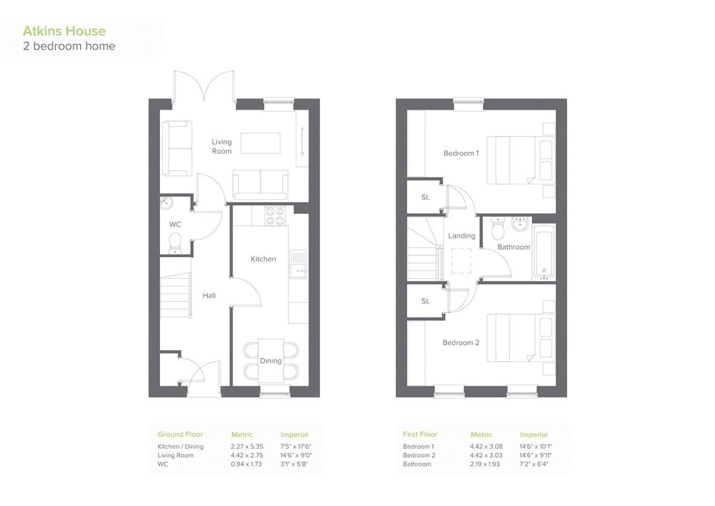
Ground Floor:
• Entrance hallway with stairs to first floor
• Handy WC and storage cupboard
• Spacious living room with French doors
• Kitchen/dining room at the front with:
• Fitted kitchen units with stainless steel single oven
• 4 ring hob, tiled splashback & extractor hood
• Stainless steel sink with mixer tap
First Floor:
• 2 double bedrooms
• Family bathroom with:
• White sanitaryware
• Shower over the bath
• Soft cushion, non-slip vinyl flooring
Outside:
• Enclosed, fully turfed rear garden with close board fencing and patio area
• 2 allocated parking spaces
*Please note, as a Shared Ownership purchase there are likely to be additional legal fees during the conveyancing process, your solicitor can advise you of these.
*The Shared Ownership scheme is a Part Buy, Part Rent way of owning your own home for a smaller upfront payment. With Shared Ownership, you buy a share of your home using a mortgage from a bank or building society and pay a subsidised rent on the share you did not purchase. The combined mortgage and rent is usually less than you’d expect to pay if you bought a similar property outright. When you’re ready, you can buy more shares until you staircase to owning 100% of your home.
Please note, as a Shared Ownership purchase there are likely to be additional legal fees during the conveyancing process, your solicitor can advise you of these.
Example:
Full Market Value: £285,000
75% Share Price: £213,750
5% Deposit: £10,687.50
Rent on un-owned share: £163.23 pcm
Estimated estate charge tbc pcm
Discover The Akins, a beautifully designed two-bedroom home available through shared ownership-perfect for first-time buyers or those looking to step onto the property ladder
Langley Park presents the most centrally located new home development in Chippenham, offering unparalleled convenience just a 3-minute walk from the train station. This prime position ensures effortless commutes, with Bath Spa only 15 minutes away and Bristol Temple Meads reachable in just 30 minutes. Chippenham is an ideal family destination, offering both immediate advantages and long-term benefits. Its vibrant high street and nearby retail parks provide a diverse array of supermarkets, popular high street brands, and unique independent shops and cafes.
The area also benefits from excellent access to high performing local schools:-
Ivy Lane Primary, Monkton Park Primary, Redland Primary, all rated Good by Ofsted, within a mile.
Secondary education covered by Hardenhuish School, Abbeyfield School & Sixth Form, Sheldon School - all Good rated and less than ~1.5 miles away.
Further education options via Wiltshire College & University Centre, just ~0.3 miles from your doorstep.
Green spaces and parks are close by:-
Just a few minutes’ walk to John Coles Park and Monkton Park-perfect for morning jogs, leisurely walks, or letting children run free.
A wealth of play options: Four major play areas with Multi-Use Games Areas (muga), including at The Arc Park and Pewsham Park.
Generous open spaces and woodland trails at Westmead Open Space and Borough Lands, ideal for nature lovers, dog walkers, or weekend picnics.
Outdoor facilities complemented by community cafés, art & sculpture trails, climbing & skatepark - active, social, and family-friendly.
Ground Floor:
• Entrance hallway with stairs to first floor
• Handy WC and storage cupboard
• Spacious living room with French doors
• Kitchen/dining room at the front with:
• Fitted kitchen units with stainless steel single oven
• 4 ring hob, tiled splashback & extractor hood
• Stainless steel sink with mixer tap
First Floor:
• 2 double bedrooms
• Family bathroom with:
• White sanitaryware
• Shower over the bath
• Soft cushion, non-slip vinyl flooring
Outside:
• Enclosed, fully turfed rear garden with close board fencing and patio area
• 2 allocated parking spaces
*Please note, as a Shared Ownership purchase there are likely to be additional legal fees during the conveyancing process, your solicitor can advise you of these.
*The Shared Ownership scheme is a Part Buy, Part Rent way of owning your own home for a smaller upfront payment. With Shared Ownership, you buy a share of your home using a mortgage from a bank or building society and pay a subsidised rent on the share you did not purchase. The combined mortgage and rent is usually less than you’d expect to pay if you bought a similar property outright. When you’re ready, you can buy more shares until you staircase to owning 100% of your home.
Please note, as a Shared Ownership purchase there are likely to be additional legal fees during the conveyancing process, your solicitor can advise you of these.
Mortgage calculator
Monthly repayment
£1,069 per month
Whole of market comparison
70+ lenders and 10,000+ products
The monthly repayments provided are estimates and should be used as a guide only. The actual amount you can borrow will depend on your personal financial situation and subject to a full application. For a more precise estimate, please use the Mojo mortgage calculator. Your home or property may be repossessed if you do not keep up repayments on your mortgage.
More information
Tenure
Council tax band
A band has not yet been confirmed.



.png)