£399,950
(£351/sq. ft)
3 bed semi-detached house for salePippins Beck, Urswick Road, Ulverston LA12
3 beds
2 baths
1 reception
1,140 sq. ft
Just added
New home
Freehold
About this property
Semi-Detached Family Home
Double Fronted Property
Three Excellent Sized Bedrooms
Side By Side Parking
Kitchen/Diner, WC/Cloakroom & Lounge
Master Bedroom With Ensuite
Modern Family Bathroom
Enclosed Garden
Expertly Built With Solar Panels & Air Sour Heat Pump
Sought After Location
The Swinways is a delightful double fronted three bedroom house style commanding key plots on the Pippins Beck development. Offering open plan kitchen/diner, separate lounge, utility room and WC/Cloak room plus three bedrooms, master with an ensuite and family bathroom. Situated on the edge of Ulverston whilst still being in within close proximately of everything the town has to offer.
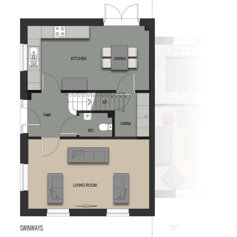
The Swinways is a delightful double fronted three bedroom house style commanding key plots on the Pippins Beck development. On the ground floor the impressive full length kitchen/diner/family room features double French doors affording plenty of natural light in the dining area, a utility room and spacious separate, dual aspect lounge. On the first floor the generous master bedroom with ensuite also extends to the full length. A modern family bathroom serves two further generous bedrooms.
Entrance hall
lounge 19' 4" x 11' 2" (5.89m x 3.4m)
cloakroom/WC 5' 4" x 3' 10" (1.63m x 1.17m)
utility 7' 1" x 5' 5" (2.16m x 1.65m)
kitchen/diner 19' 6" x 10' 4" (5.94m x 3.15m)
first floor landing
master bedroom 12' 11" x 10' 5" (3.94m x 3.18m)
ensuite 7' 0" x 6' 2" (2.13m x 1.88m)
bedroom 10' 7" x 10' 2" (3.23m x 3.1m)
bedroom 8' 11" x 8' 6" (2.72m x 2.59m)
bathroom 7' 9" x 5' 8" (2.36m x 1.73m)
The Swinways is a delightful double fronted three bedroom house style commanding key plots on the Pippins Beck development. On the ground floor the impressive full length kitchen/diner/family room features double French doors affording plenty of natural light in the dining area, a utility room and spacious separate, dual aspect lounge. On the first floor the generous master bedroom with ensuite also extends to the full length. A modern family bathroom serves two further generous bedrooms.
Entrance hall
lounge 19' 4" x 11' 2" (5.89m x 3.4m)
cloakroom/WC 5' 4" x 3' 10" (1.63m x 1.17m)
utility 7' 1" x 5' 5" (2.16m x 1.65m)
kitchen/diner 19' 6" x 10' 4" (5.94m x 3.15m)
first floor landing
master bedroom 12' 11" x 10' 5" (3.94m x 3.18m)
ensuite 7' 0" x 6' 2" (2.13m x 1.88m)
bedroom 10' 7" x 10' 2" (3.23m x 3.1m)
bedroom 8' 11" x 8' 6" (2.72m x 2.59m)
bathroom 7' 9" x 5' 8" (2.36m x 1.73m)



.png)