Guide price
£475,000
4 bed detached house for saleMill Road, Winfarthing IP22
4 beds
3 baths
1 reception
EPC Rating: D
New home
Freehold
About this property
10 year structural warranty
3 bathrooms (including two en-suite)
Air source heat pumps & under floor heating – providing reduced running costs
Westerly facing rear gardens
Individual design
Utility room
High specification
Freehold
Private drainage
Of a high specification and offering spacious living in the regions 1,500 sq ft. Enjoying westerly facing rear gardens, good off road parking space, en-suite facilities and utility room.
Plot 5 Guide Price £475,000
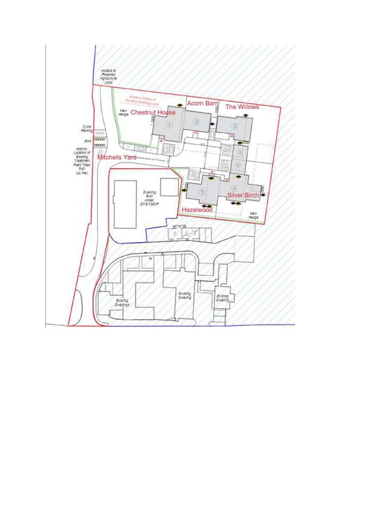
This private development is situated on a former working farm, where planning permission has enabled the transformation of existing agricultural buildings into new residential properties. At the front of the development, the original period farmhouse is still in situ, alongside a beautifully converted barn and a handful of period cottages that creates a delightful street scene. The development comprises five brand new dwellings set back from the existing building line offering stunning views over the rural countryside. Located to the outskirts of Winfarthing, a well-established village just 4.5 miles northwest of Diss, the village still retains a strong and active local community helped by having local amenities including schooling, a public house and fine church. A more extensive range of amenities and facilities can be found within the historic market town of Diss, set amid the beautiful Waveney Valley and with the benefit of a mainline railway station connecting to London Liverpool Street and Norwich.
These aesthetically pleasing dwellings have been built to replicate barn conversions in keeping with their local surroundings. Each property is individually designed and of traditional brick and block cavity wall construction with wide black weatherboard elevations, off a red brick plinth and under a clay pantile roof, finished with high quality modern and contemporary fixtures and fittings. Heated by energy efficient air source heat pumps with underfloor heating at ground floor level and radiators to first floor level, coupled with high thermal insulation levels resulting in reduced energy consumption. Every detail of the design and construction has been meticulously planned to maximise the use of space and light, creating versatile yet well-proportioned rooms. Some of the properties feature vaulted ceilings enhancing the sense of grandeur, with bi-folding doors from the kitchen and main reception rooms all seamlessly connecting the interior to a spacious, sun-drenched terrace perfect for both family living and entertaining.
The developers, Kenzoku, have built a strong reputation for careful craftmanship and quality homes over the past 30 years surpassing the standard levels now often seen with new build developments. Each dwelling comes with a 10 year structural warranty alongside the standard warranties for fixtures and fittings. Completion for the properties is due early 2025.
Specification -
kitchens - All kitchen and utility units with 'soft close' doors. Integrated Zanussi appliances, with oven and combi oven, hob and integrated extractor hood. Fully integrated fridge/freezer and dishwasher and washing machine. Wall tiling or upstand to match the worktops. Under cabinet lighting. Waste recycling bins (where possible).
Bathrooms & en-suites – White sanitary ware. Chrome finish taps and shower fittings. Thermostatically controlled showers. Hand held shower attachment to baths. Wall tiles for specified areas to bathrooms and en-suites. Chrome heated towel rails to bathrooms and en-suites.
Construction – Brick and black cavity wall construction, off a brick plinth with black weather boarding. Double glazed windows as standard. Highly insulated ground floors and lofts providing comfort and excellent efficiency.
Electrical - Generous number of sockets. Cat 6 connection points. Low energy LED light fittings. Mains smoke detectors with battery backup. TV aerial within the loft space. High speed broadband via 'Fibre to the Premises'.
Internal decoration & finishes – Floor coverings throughout; ranging from carpets, oak engineered flooring and tiled flooring to bathrooms and en-suites. Tiled flooring to the kitchen utility and W.C. Oak internal doors.
Heating system – Air source heat pump powered central heating. Immersion heater. Zoned underfloor heating to ground floor and radiators to first floor level, touch screen programmable room thermostats.
External – Composite front doors, fitted with multi-locking points. Block weave driveways and landscaped rear gardens, being turfed with paved patios. Post and rail to most rear boundaries.
Services:
Drainage – private treatment plant servicing all 5 properties with each property contributing to the costs of servicing alongside maintenance of the share driveway.
Anti-Money Laundering Fee Statement
To comply with hmrc's regulations on Anti-Money Laundering (aml), Whittley Parish are legally required to conduct aml checks on every purchaser(s) once a sale is agreed. We use a government-approved electronic identity verification service from Landmark to ensure compliance, accuracy, and security. This is approved by the Government as part of the Digital Identity and Attributes Trust Framework (diatf).
The cost of anti-money laundering (aml) checks is £50 + VAT (£60 inc VAT) per purchase, payable in advance after an offer has been accepted. This fee to Whittley Parish is mandatory to comply with hmrc regulations and must be paid before a memorandum of sale can be issued. Please note that the fee is non-refundable.
Plot 5 Guide Price £475,000
This private development is situated on a former working farm, where planning permission has enabled the transformation of existing agricultural buildings into new residential properties. At the front of the development, the original period farmhouse is still in situ, alongside a beautifully converted barn and a handful of period cottages that creates a delightful street scene. The development comprises five brand new dwellings set back from the existing building line offering stunning views over the rural countryside. Located to the outskirts of Winfarthing, a well-established village just 4.5 miles northwest of Diss, the village still retains a strong and active local community helped by having local amenities including schooling, a public house and fine church. A more extensive range of amenities and facilities can be found within the historic market town of Diss, set amid the beautiful Waveney Valley and with the benefit of a mainline railway station connecting to London Liverpool Street and Norwich.
These aesthetically pleasing dwellings have been built to replicate barn conversions in keeping with their local surroundings. Each property is individually designed and of traditional brick and block cavity wall construction with wide black weatherboard elevations, off a red brick plinth and under a clay pantile roof, finished with high quality modern and contemporary fixtures and fittings. Heated by energy efficient air source heat pumps with underfloor heating at ground floor level and radiators to first floor level, coupled with high thermal insulation levels resulting in reduced energy consumption. Every detail of the design and construction has been meticulously planned to maximise the use of space and light, creating versatile yet well-proportioned rooms. Some of the properties feature vaulted ceilings enhancing the sense of grandeur, with bi-folding doors from the kitchen and main reception rooms all seamlessly connecting the interior to a spacious, sun-drenched terrace perfect for both family living and entertaining.
The developers, Kenzoku, have built a strong reputation for careful craftmanship and quality homes over the past 30 years surpassing the standard levels now often seen with new build developments. Each dwelling comes with a 10 year structural warranty alongside the standard warranties for fixtures and fittings. Completion for the properties is due early 2025.
Specification -
kitchens - All kitchen and utility units with 'soft close' doors. Integrated Zanussi appliances, with oven and combi oven, hob and integrated extractor hood. Fully integrated fridge/freezer and dishwasher and washing machine. Wall tiling or upstand to match the worktops. Under cabinet lighting. Waste recycling bins (where possible).
Bathrooms & en-suites – White sanitary ware. Chrome finish taps and shower fittings. Thermostatically controlled showers. Hand held shower attachment to baths. Wall tiles for specified areas to bathrooms and en-suites. Chrome heated towel rails to bathrooms and en-suites.
Construction – Brick and black cavity wall construction, off a brick plinth with black weather boarding. Double glazed windows as standard. Highly insulated ground floors and lofts providing comfort and excellent efficiency.
Electrical - Generous number of sockets. Cat 6 connection points. Low energy LED light fittings. Mains smoke detectors with battery backup. TV aerial within the loft space. High speed broadband via 'Fibre to the Premises'.
Internal decoration & finishes – Floor coverings throughout; ranging from carpets, oak engineered flooring and tiled flooring to bathrooms and en-suites. Tiled flooring to the kitchen utility and W.C. Oak internal doors.
Heating system – Air source heat pump powered central heating. Immersion heater. Zoned underfloor heating to ground floor and radiators to first floor level, touch screen programmable room thermostats.
External – Composite front doors, fitted with multi-locking points. Block weave driveways and landscaped rear gardens, being turfed with paved patios. Post and rail to most rear boundaries.
Services:
Drainage – private treatment plant servicing all 5 properties with each property contributing to the costs of servicing alongside maintenance of the share driveway.
Anti-Money Laundering Fee Statement
To comply with hmrc's regulations on Anti-Money Laundering (aml), Whittley Parish are legally required to conduct aml checks on every purchaser(s) once a sale is agreed. We use a government-approved electronic identity verification service from Landmark to ensure compliance, accuracy, and security. This is approved by the Government as part of the Digital Identity and Attributes Trust Framework (diatf).
The cost of anti-money laundering (aml) checks is £50 + VAT (£60 inc VAT) per purchase, payable in advance after an offer has been accepted. This fee to Whittley Parish is mandatory to comply with hmrc regulations and must be paid before a memorandum of sale can be issued. Please note that the fee is non-refundable.
Mortgage calculator
Monthly repayment
£2,376 per month
Whole of market comparison
70+ lenders and 10,000+ products
The monthly repayments provided are estimates and should be used as a guide only. The actual amount you can borrow will depend on your personal financial situation and subject to a full application. For a more precise estimate, please use the Mojo mortgage calculator. Your home or property may be repossessed if you do not keep up repayments on your mortgage.



.png)