£895,000
4 bed detached house for saleTrinity Field, Ringmer, Lewes, East Sussex BN8
4 beds
3 baths
2 receptions
New home
Freehold
About this property
Air source heating
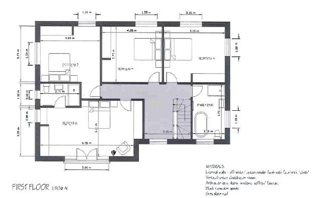
A beautiful brand-new development of two large bespoke, 4 bedroom detached homes in the heart of Ringmer. Built to a very high standard by reputable local family run developer and with completion due in early part of 2026, both properties offer a wonderful opportunity to purchase a large, detached family home which is close to the centre of the Village. Each home provides over 2,000 sq. Ft of living space which includes large reception hallway with full height staircase, a great bespoke built family kitchen which is then open plan with the dining room, which then features bi fold doors to the garden. A big and separate utility room with room for all appliances and door to side and rear garden. There is a downstairs study/bedroom and a large family sitting room. Each house has a family bathroom and en suite to two of the bedrooms there are lots of built in wardrobes, although you hardly notice them as the rooms are so big. Each home is fitted with the latest air source heating systems. Brilliantly designed loft space with retractable ladder providing graet storage area or potential to extend to create a wonderful master suite STPP. Some glorious views across open fields at the back of the property are simply lovely. There is a garage with eaves storage and allocated parking space at the front for each property.
Ringmer Village is a sought-after place to live for many reasons. It is just outside the County Town of Lewes and offers far more space for families to live and work without the cramped feel sometimes experienced in Town. Local bus service into Lewes just over the road, this is the perfect balance between work and home life. The cricket club play on The Green most weekends in the summer months and the newly developed County League Football Club are now at their new home during the Winter. There is a great bowls club, Library, Surgery and a vibrant parade of shops with a Bakers, Butchers, General Store, Cafe, Fish and Chip shop whom serve the local community. Lewes has a wider range of shops, bars and cafes as well as Waitrose and Tesco and a small retail industrial estate. There is a mainline railway station with regular services to London Victoria in about 1 hour away, with Brighton being about 20 minutes away.
Ringmer Village is a sought-after place to live for many reasons. It is just outside the County Town of Lewes and offers far more space for families to live and work without the cramped feel sometimes experienced in Town. Local bus service into Lewes just over the road, this is the perfect balance between work and home life. The cricket club play on The Green most weekends in the summer months and the newly developed County League Football Club are now at their new home during the Winter. There is a great bowls club, Library, Surgery and a vibrant parade of shops with a Bakers, Butchers, General Store, Cafe, Fish and Chip shop whom serve the local community. Lewes has a wider range of shops, bars and cafes as well as Waitrose and Tesco and a small retail industrial estate. There is a mainline railway station with regular services to London Victoria in about 1 hour away, with Brighton being about 20 minutes away.
Mortgage calculator
Monthly repayment
£4,477 per month
Whole of market comparison
70+ lenders and 10,000+ products
The monthly repayments provided are estimates and should be used as a guide only. The actual amount you can borrow will depend on your personal financial situation and subject to a full application. For a more precise estimate, please use the Mojo mortgage calculator. Your home or property may be repossessed if you do not keep up repayments on your mortgage.



.png)