£190,000
(£99/sq. ft)
Land for saleBeach Road, St. Austell PL25
4 beds
3 baths
2 receptions
1,926 sq. ft
New home
Freehold
About this property
Building plot
Access from beach road in carlyon bay
Full planning approved
Detached 4/5 bedroom house
Off street parking
Executive location
Planning portal PA21/08829
Walking distance to the beach
Close to charlestown neighbouring village
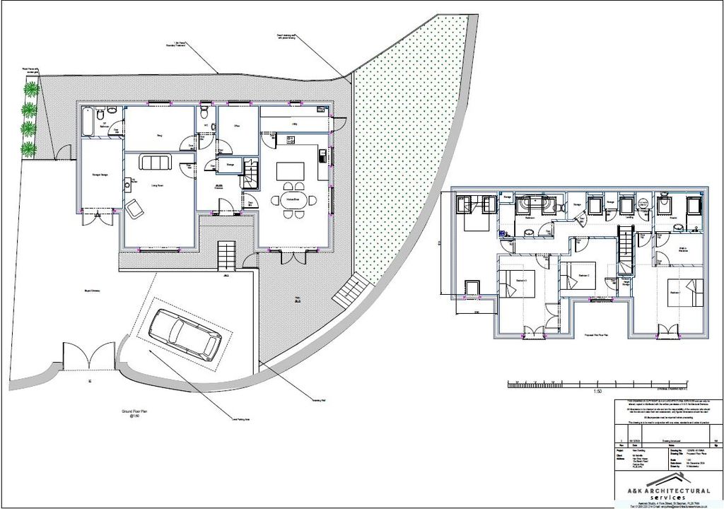
Millerson Estate Agents are thrilled to present this exceedingly rare opportunity to acquire a prime south-facing building plot, now fully cleared and ready for development. Offered with full planning permission (Planning Reference: PA21/08829), the site is approved for a unique and individually designed four/five bedroom executive family home, extending to approximately 179m2.
Building Plot
Millerson Estate Agents are thrilled to present this exceedingly rare opportunity to acquire a prime south-facing building plot, now fully cleared and ready for development. Offered with full planning permission (Planning Reference: PA21/08829), the site is approved for a unique and individually designed four/five bedroom executive family home, extending to approximately 179m2.
The proposed accommodation has been thoughtfully designed to suit modern living, featuring a spacious kitchen/diner, a generous living room, a separate snug or study, and a principal bedroom complete with en-suite bathroom. Externally, the plans incorporate off-road parking, a garage, and private gardens, offering an ideal blend of indoor and outdoor space for family life.
The plot itself measures approximately 70ft by 62ft and benefits from a desirable south-facing aspect, making it an ideal setting for a high-quality, one-off build in a sought-after location. Opportunities of this calibre are incredibly rare, and early enquiries are strongly encouraged.
Location
This plot is located in one of the most desirable areas in St Austell, if not Cornwall, convenient for wide range of local amities with café, wine bars, golf course, local schools, and walking distance of local beaches, convenient for Charlestown famous for scenes from Poldark, Fowey, and the town of St Austell with a wide range of local shop, business and local railway station. The famous Eden project is also a short drive away as are local cycle ways, walks and many other popular beaches.
Services
Mains water, electricity, drainage are not connected but are all nearby.
Agents Note
Cil due if the property was sold on completion would be: £18,688.05, please note the cil payment reduces year on year the property is classed as lived in by the liable person(s) and then not applicable after the expiry of year 3
Building Plot
Millerson Estate Agents are thrilled to present this exceedingly rare opportunity to acquire a prime south-facing building plot, now fully cleared and ready for development. Offered with full planning permission (Planning Reference: PA21/08829), the site is approved for a unique and individually designed four/five bedroom executive family home, extending to approximately 179m2.
The proposed accommodation has been thoughtfully designed to suit modern living, featuring a spacious kitchen/diner, a generous living room, a separate snug or study, and a principal bedroom complete with en-suite bathroom. Externally, the plans incorporate off-road parking, a garage, and private gardens, offering an ideal blend of indoor and outdoor space for family life.
The plot itself measures approximately 70ft by 62ft and benefits from a desirable south-facing aspect, making it an ideal setting for a high-quality, one-off build in a sought-after location. Opportunities of this calibre are incredibly rare, and early enquiries are strongly encouraged.
Location
This plot is located in one of the most desirable areas in St Austell, if not Cornwall, convenient for wide range of local amities with café, wine bars, golf course, local schools, and walking distance of local beaches, convenient for Charlestown famous for scenes from Poldark, Fowey, and the town of St Austell with a wide range of local shop, business and local railway station. The famous Eden project is also a short drive away as are local cycle ways, walks and many other popular beaches.
Services
Mains water, electricity, drainage are not connected but are all nearby.
Agents Note
Cil due if the property was sold on completion would be: £18,688.05, please note the cil payment reduces year on year the property is classed as lived in by the liable person(s) and then not applicable after the expiry of year 3
Mortgage calculator
Monthly repayment
£950 per month
Whole of market comparison
70+ lenders and 10,000+ products
The monthly repayments provided are estimates and should be used as a guide only. The actual amount you can borrow will depend on your personal financial situation and subject to a full application. For a more precise estimate, please use the Mojo mortgage calculator. Your home or property may be repossessed if you do not keep up repayments on your mortgage.



.png)