£1,000,000
4 bed detached house for saleAshwell Common, Graveley, Hitchin, Hertfordshire SG4
4 beds
3 baths
2 receptions
New home
Freehold
About this property
Exclusive development of just four brand new homes
Highly regarded village location
10 year build warranty
Air source heat pumps
Underfloor heating throughout
Completion Spring 2026
Early bird reservation and viewings available
Generous, private gardens
Driveways and garages 6.5m in length
*** reservation taken ***
Ready to view......A select development of exclusive detached family homes built to an exacting standard and specification by a local bespoke builder.
Thoughtfully designed, Gothic Bower offers a choice of three properties within small enclave on the outskirts of Graveley village with distant views towards the village cricket ground and countryside beyond.
Prices range from £825,000 to £1,125,000 with further details, appointments to view and specification available upon request.
Location
Graveley is a semi-rural village set between Stevenage, Hitchin and Baldock renowned for its attractive village pond, pretty church and the hospitality provided at the Wagon & Horses Public House. The village offers a well-regarded school, Pre-School and both a 9 and 18 hole Golf Course at Chesfield Downs with a Gym and driving range. There is also easy access to the A1M and local Sainsburys supermarket. The neighbouring town of Stevenage comprises of both New and Old Towns. There are comprehensive shopping facilities in the New Town, Schools, a Leisure Complex, Theatre and Arts centre and the mainline station to London's Kings Cross providing fast and regular trains to Kings Cross in 23mins. The charming medieval market town of Hitchin is under 5 miles away and has many fine Tudor and Georgian buildings, particularly around the market square. Near to the market square stands the large medieval parish church of St Mary. The town provides good shopping as well as a swimming (truncated)
Specification
* 10 year build warranty
* Air source heat pumps for heating and hot water
* Under floor heating throughout
* Residence composite casement windows with glazing bars in colour grained wood
* Sheerline open out contemporary bi fold doors
* Residence 9 French Door in colour Grained White
* Luxury lvt Camero flooring to all ground floors, ensuites & bathrooms
* Plot 2 & 3 pre plumbed for air conditioning
* eVolo electric vehicle charge point
* Nobilia Laser in colour Sand for the German designed wall/floor units in the kitchen and utility room
* Nobilia Laser in colour Taupe for the German designed kitchen island units
* Polished 20mm quartz ‘Calcatta Gold’ worktops, upstands, splash backs to hob and waterfall edges to kitchen islands
* Bosch integrated fridge/freezer
* Bosch built in oven & combi oven – black
* Bosch induction hob – black
* Bosch canopy cooker hood – anthracite / concealed in wall cupboard
* Bosch fully integrated dishwasher
* (truncated)
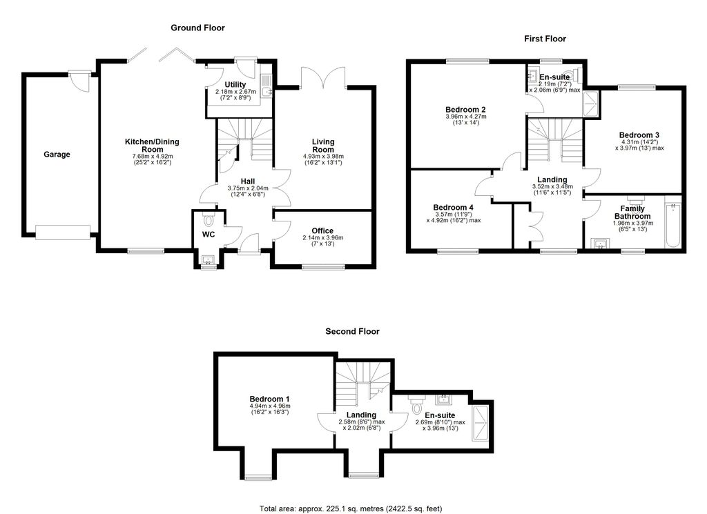
The Accommodation Comprises
Reception Hallway (3.76m x 2.03m)
Living Room (4.93m x 4m)
Office (3.96m x 2.16m)
Kitchen/Dining Room (7.67m x 4.93m)
Utility Room (2.67m x 2.18m)
First Floor Landing (3.5m x 3.48m)
Bedroom Two (4.27m x 3.96m)
En-Suite Shower Room (2.18m x 2.06m)
Bedroom Three (4.32m x 3.96m)
Measurements into recess.
Bedroom Four (4.93m x 3.58m)
Measurements into recess.
Family Bathroom (3.96m x 1.96m)
Second Floor Landing
Bedroom One (4.95m x 4.93m)
En-Suite Bathroom (3.96m x 2.7m)
Garage (6.48m x 3.02m)
Ready to view......A select development of exclusive detached family homes built to an exacting standard and specification by a local bespoke builder.
Thoughtfully designed, Gothic Bower offers a choice of three properties within small enclave on the outskirts of Graveley village with distant views towards the village cricket ground and countryside beyond.
Prices range from £825,000 to £1,125,000 with further details, appointments to view and specification available upon request.
Location
Graveley is a semi-rural village set between Stevenage, Hitchin and Baldock renowned for its attractive village pond, pretty church and the hospitality provided at the Wagon & Horses Public House. The village offers a well-regarded school, Pre-School and both a 9 and 18 hole Golf Course at Chesfield Downs with a Gym and driving range. There is also easy access to the A1M and local Sainsburys supermarket. The neighbouring town of Stevenage comprises of both New and Old Towns. There are comprehensive shopping facilities in the New Town, Schools, a Leisure Complex, Theatre and Arts centre and the mainline station to London's Kings Cross providing fast and regular trains to Kings Cross in 23mins. The charming medieval market town of Hitchin is under 5 miles away and has many fine Tudor and Georgian buildings, particularly around the market square. Near to the market square stands the large medieval parish church of St Mary. The town provides good shopping as well as a swimming (truncated)
Specification
* 10 year build warranty
* Air source heat pumps for heating and hot water
* Under floor heating throughout
* Residence composite casement windows with glazing bars in colour grained wood
* Sheerline open out contemporary bi fold doors
* Residence 9 French Door in colour Grained White
* Luxury lvt Camero flooring to all ground floors, ensuites & bathrooms
* Plot 2 & 3 pre plumbed for air conditioning
* eVolo electric vehicle charge point
* Nobilia Laser in colour Sand for the German designed wall/floor units in the kitchen and utility room
* Nobilia Laser in colour Taupe for the German designed kitchen island units
* Polished 20mm quartz ‘Calcatta Gold’ worktops, upstands, splash backs to hob and waterfall edges to kitchen islands
* Bosch integrated fridge/freezer
* Bosch built in oven & combi oven – black
* Bosch induction hob – black
* Bosch canopy cooker hood – anthracite / concealed in wall cupboard
* Bosch fully integrated dishwasher
* (truncated)
The Accommodation Comprises
Reception Hallway (3.76m x 2.03m)
Living Room (4.93m x 4m)
Office (3.96m x 2.16m)
Kitchen/Dining Room (7.67m x 4.93m)
Utility Room (2.67m x 2.18m)
First Floor Landing (3.5m x 3.48m)
Bedroom Two (4.27m x 3.96m)
En-Suite Shower Room (2.18m x 2.06m)
Bedroom Three (4.32m x 3.96m)
Measurements into recess.
Bedroom Four (4.93m x 3.58m)
Measurements into recess.
Family Bathroom (3.96m x 1.96m)
Second Floor Landing
Bedroom One (4.95m x 4.93m)
En-Suite Bathroom (3.96m x 2.7m)
Garage (6.48m x 3.02m)
Mortgage calculator
Monthly repayment
£5,002 per month
Whole of market comparison
70+ lenders and 10,000+ products
The monthly repayments provided are estimates and should be used as a guide only. The actual amount you can borrow will depend on your personal financial situation and subject to a full application. For a more precise estimate, please use the Mojo mortgage calculator. Your home or property may be repossessed if you do not keep up repayments on your mortgage.



.png)