Guide price
£150,000
Land for salePlot For Sale, 35 Muir Road, Townhill, Dunfermline KY12
4 beds
2 baths
2 receptions
New home
Chain free
Freehold
About this property
Garage
Garden
No Onward Chain
Off-street parking
Description
Abbey forth presents to market this wonderful opportunity to purchase A generously sized semi-rural plot to the south-side of townhill village.
The plot situated at no.35 boasts over 1300 sqm of land with views southwards and the previous dwelling has been demolished and cleared.
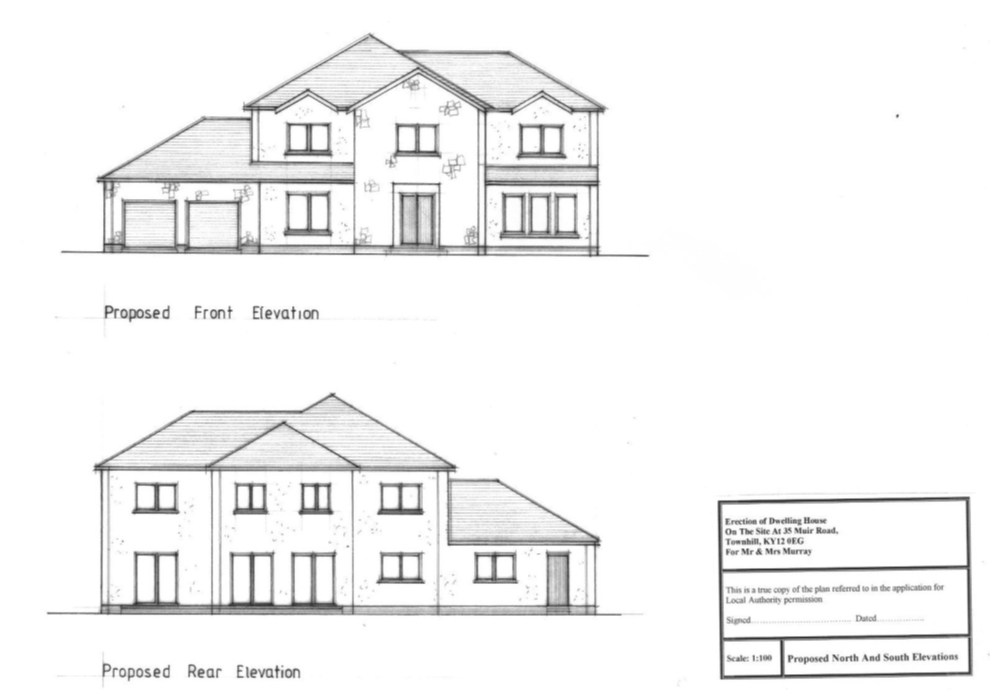
With lapsed planning, which has been approved twice before, the previously successful application gives consent for the development of a 2 storey, 4 bedroom Dwelling House at 35 Muir Road Townhill.
The total site, measuring approximately 1,341m2 offers the potential to be split into 2 separate plots with the larger plot of 845m2 - subject to further investigation with fife planning.
The site previously housed a bungalow, which was demolished in preparation for the new dwelling house. The vast site has been stripped and cleared with all utilities and services capped.
The house was designed to best take advantage of the opportunities provided by the site. It has an appropriate frontage to Muir Road with adequate parking and garden grounds, with a modern feel to the elevation treatment.
The rear of the project has views to Dunfermline and will benefit from solar gains.
The materials proposed on previous successful application are as follows;
Walls - Reclaimed Scottish Sandstone. Smooth White Render. Cedar cladding.
Roof - Scotch Slate, selected to be as close to the local colour as possible.
Windows & Doors -
Roof - Scotch Slate, selected to be as close to the local colour as possible.
Windows & Doors - Composite aluminium/timber.
Referring to previous application - The house will be constructed using a highly thermally efficient and draught free sips wall and roof system. This together with generous levels of insulation in the floor slab will ensure that the house comfortably exceeds current 'U' values. In addition to this, the house will incorporate the following technologies;
* Ground source heat pump.
* Solar photovoltaic panels.
* Wind Turbine
* Solar hot water panels.
* Triple glazing.
* Grey water recycling.
Key information
Plot for sale - New Build Detached Villa
4 Bedrooms, 2 Reception Rooms, 2 Bathroom. Flexible accommodation.
With previously approved planning - Ref. 17/00766/full.
Large outdoor space with views.
Location
The property is located on a quiet street to the south side of Townhill Village and is within walking distance of Townhill Loch & Townhill Public Park. Local amenities include a well-renowned primary school, a pub, shops, café, and general store - all within easy reach. There are good connections to Dunfermline city centre and Queen Margaret train station with its regular connections to and from Edinburgh. Dunfermline City-Centre is a 5-10-minute drive from the property and is an ideal commuter base for ease of travelling to north and south of the Forth Bridges by road or rail. The area is hugely popular with families given the broad range of amenities that Dunfermline offers. Edinburgh is easily accessible via the M90 motorway which is less than 10 minutes' drive from the property and the four local railway stations/halts 5-15 minutes' drive. Dunfermline is a highly desirable location given its proximity to Edinburgh and Edinburgh Airport and with easy access to Scotland's motorway network (M90/M8) and for commuters Edinburgh and Gyle Business Centre is easily accessible via Fife Circle train service. The Kingsgate shopping centre offers a range of shops, high street brands including an M&S and leads out to Dunfermline High Street with a further choice of shopping, restaurants and cafes leading down to Bridge Street and beyond. For entertainment, there is Carnegie Leisure Centre as well as Carnegie Hall and Alhambra Theatres. In addition, there is Pittencrieff Park (The Glen) and the Public Park which leads to Dunfermline City train station. Moreover, further entertainment options including cinema complex is situated to the east of Dunfermline at Fife Leisure Park. Dunfermline offers four high schools and a wide selection of primary schooling. There is also Carnegie College Campus to the east of Dunfermline.
Viewing
By Appointment, contact Abbey Forth Property - Sales Team.
Tenure: Freehold
Abbey forth presents to market this wonderful opportunity to purchase A generously sized semi-rural plot to the south-side of townhill village.
The plot situated at no.35 boasts over 1300 sqm of land with views southwards and the previous dwelling has been demolished and cleared.
With lapsed planning, which has been approved twice before, the previously successful application gives consent for the development of a 2 storey, 4 bedroom Dwelling House at 35 Muir Road Townhill.
The total site, measuring approximately 1,341m2 offers the potential to be split into 2 separate plots with the larger plot of 845m2 - subject to further investigation with fife planning.
The site previously housed a bungalow, which was demolished in preparation for the new dwelling house. The vast site has been stripped and cleared with all utilities and services capped.
The house was designed to best take advantage of the opportunities provided by the site. It has an appropriate frontage to Muir Road with adequate parking and garden grounds, with a modern feel to the elevation treatment.
The rear of the project has views to Dunfermline and will benefit from solar gains.
The materials proposed on previous successful application are as follows;
Walls - Reclaimed Scottish Sandstone. Smooth White Render. Cedar cladding.
Roof - Scotch Slate, selected to be as close to the local colour as possible.
Windows & Doors -
Roof - Scotch Slate, selected to be as close to the local colour as possible.
Windows & Doors - Composite aluminium/timber.
Referring to previous application - The house will be constructed using a highly thermally efficient and draught free sips wall and roof system. This together with generous levels of insulation in the floor slab will ensure that the house comfortably exceeds current 'U' values. In addition to this, the house will incorporate the following technologies;
* Ground source heat pump.
* Solar photovoltaic panels.
* Wind Turbine
* Solar hot water panels.
* Triple glazing.
* Grey water recycling.
Key information
Plot for sale - New Build Detached Villa
4 Bedrooms, 2 Reception Rooms, 2 Bathroom. Flexible accommodation.
With previously approved planning - Ref. 17/00766/full.
Large outdoor space with views.
Location
The property is located on a quiet street to the south side of Townhill Village and is within walking distance of Townhill Loch & Townhill Public Park. Local amenities include a well-renowned primary school, a pub, shops, café, and general store - all within easy reach. There are good connections to Dunfermline city centre and Queen Margaret train station with its regular connections to and from Edinburgh. Dunfermline City-Centre is a 5-10-minute drive from the property and is an ideal commuter base for ease of travelling to north and south of the Forth Bridges by road or rail. The area is hugely popular with families given the broad range of amenities that Dunfermline offers. Edinburgh is easily accessible via the M90 motorway which is less than 10 minutes' drive from the property and the four local railway stations/halts 5-15 minutes' drive. Dunfermline is a highly desirable location given its proximity to Edinburgh and Edinburgh Airport and with easy access to Scotland's motorway network (M90/M8) and for commuters Edinburgh and Gyle Business Centre is easily accessible via Fife Circle train service. The Kingsgate shopping centre offers a range of shops, high street brands including an M&S and leads out to Dunfermline High Street with a further choice of shopping, restaurants and cafes leading down to Bridge Street and beyond. For entertainment, there is Carnegie Leisure Centre as well as Carnegie Hall and Alhambra Theatres. In addition, there is Pittencrieff Park (The Glen) and the Public Park which leads to Dunfermline City train station. Moreover, further entertainment options including cinema complex is situated to the east of Dunfermline at Fife Leisure Park. Dunfermline offers four high schools and a wide selection of primary schooling. There is also Carnegie College Campus to the east of Dunfermline.
Viewing
By Appointment, contact Abbey Forth Property - Sales Team.
Tenure: Freehold
Mortgage calculator
Monthly repayment
£750 per month
Whole of market comparison
70+ lenders and 10,000+ products
The monthly repayments provided are estimates and should be used as a guide only. The actual amount you can borrow will depend on your personal financial situation and subject to a full application. For a more precise estimate, please use the Mojo mortgage calculator. Your home or property may be repossessed if you do not keep up repayments on your mortgage.



.png)