Guide price
£250,000
(£144/sq. ft)
Land for saleMain Road, Meriden, Solihull CV7
2 receptions
1,732 sq. ft
New home
Freehold
About this property
Communal garden
Off street parking
Central heating
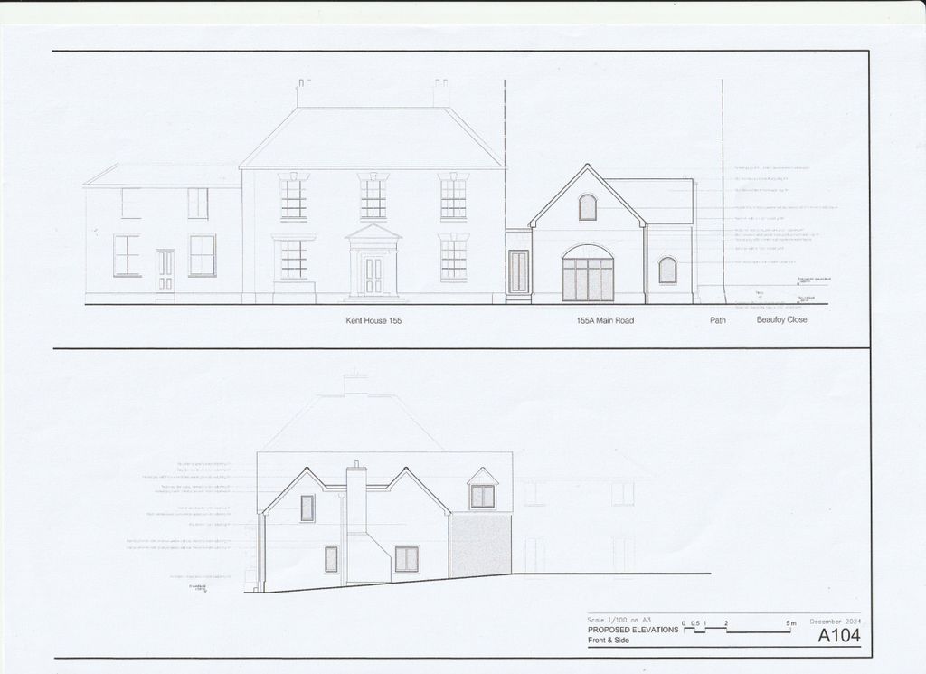
Residential development site with full planning approval
Adjacent to Significant Heritage Grade II property known as Kent House
155a main road, meriden CV7 7NH
Set in the desirable village of Meriden, opposite the Doctors Surgery and the Village Hall, the property benefits from a private cul-de-sac location close to local shops, pubs, Meriden Church of England Primary School and commuter routes to Solihull, Coventry and Birmingham plus Birmingham International Airport and National Exhibition Centre. On a main bus route between Birmingham and Coventry.
Two freehold character cottage dwellings – both Two Double bedroomed with walk in shower/ bath each en-suite.
Open plan kitchen with breakfast bar, dining and sitting room with wood-burning stove fireplace
chimney facility. Ground floor Toilet plus separate cloakroom.
Two private car parking spaces for each property.
Front lawn and rear private communal garden/wash/dry
area. Fully screened bin store.
External Footprint Proposed Development 89.4 sq m
total development : 161 sq m / 1,732 sq ft
Community Infrastructure Levy or cil liability : Provisionally estimated at under £16,000 subject to Local Authority Confirmation
All mains services available for connection. Full
planning consents – Solihull lbc Numbers : Pl/2024/00347/ppfl and
pl/2024/00348/lbc.
For Site Plan and Drawings "click" on additional links/Documents tab
I.D checks plus aml rules
Legally we must conduct identity and Anti-money Laundering checks and gather information about every buyer. These checks are essential in fulfilling our Customer Due Diligence obligations, which must be done before any property can be marked as sold subject to contract. The rules are set by law and enforced by trading standards.
We will start these checks once terms have been provisionally agreed on a property. The cost is £28 (including VAT) per property transaction. This fee covers the expense of obtaining relevant data and any necessary manual checks and monitoring.
Viewing:
Viewing by arrangement through the agents.
Notice
Leon shutkever & co ltd as agents for the vendor and for themselves, give notice that;
1. These particulars do not constitute an offer, or contract, or any part thereof and none
of the statements contained in the particulars as to the property is to be relied on as a statement or representation of fact.
2. An intending purchaser must satisfy himself by inspection or otherwise, as to the accuracy of the statements herein.
Such statements are made in good faith but without responsibility on the part of leon shutkever & co ltd or the vendor.
3. The vendor does not make or give, nor is leon shutkever & co ltd or their staff authorised to make or give any representation of
warranty in respect of this property.
In the event of any inconsistency between these particulars and the Conditions of Sale, the latter shall prevail.
Subject to contract
The terms Vendor and Purchaser shall, where the context requires, be deemed to refer to Lessee and Lessor respectively.
Adjacent to Significant Heritage Grade II property known as Kent House
155a main road, meriden CV7 7NH
Set in the desirable village of Meriden, opposite the Doctors Surgery and the Village Hall, the property benefits from a private cul-de-sac location close to local shops, pubs, Meriden Church of England Primary School and commuter routes to Solihull, Coventry and Birmingham plus Birmingham International Airport and National Exhibition Centre. On a main bus route between Birmingham and Coventry.
Two freehold character cottage dwellings – both Two Double bedroomed with walk in shower/ bath each en-suite.
Open plan kitchen with breakfast bar, dining and sitting room with wood-burning stove fireplace
chimney facility. Ground floor Toilet plus separate cloakroom.
Two private car parking spaces for each property.
Front lawn and rear private communal garden/wash/dry
area. Fully screened bin store.
External Footprint Proposed Development 89.4 sq m
total development : 161 sq m / 1,732 sq ft
Community Infrastructure Levy or cil liability : Provisionally estimated at under £16,000 subject to Local Authority Confirmation
All mains services available for connection. Full
planning consents – Solihull lbc Numbers : Pl/2024/00347/ppfl and
pl/2024/00348/lbc.
For Site Plan and Drawings "click" on additional links/Documents tab
I.D checks plus aml rules
Legally we must conduct identity and Anti-money Laundering checks and gather information about every buyer. These checks are essential in fulfilling our Customer Due Diligence obligations, which must be done before any property can be marked as sold subject to contract. The rules are set by law and enforced by trading standards.
We will start these checks once terms have been provisionally agreed on a property. The cost is £28 (including VAT) per property transaction. This fee covers the expense of obtaining relevant data and any necessary manual checks and monitoring.
Viewing:
Viewing by arrangement through the agents.
Notice
Leon shutkever & co ltd as agents for the vendor and for themselves, give notice that;
1. These particulars do not constitute an offer, or contract, or any part thereof and none
of the statements contained in the particulars as to the property is to be relied on as a statement or representation of fact.
2. An intending purchaser must satisfy himself by inspection or otherwise, as to the accuracy of the statements herein.
Such statements are made in good faith but without responsibility on the part of leon shutkever & co ltd or the vendor.
3. The vendor does not make or give, nor is leon shutkever & co ltd or their staff authorised to make or give any representation of
warranty in respect of this property.
In the event of any inconsistency between these particulars and the Conditions of Sale, the latter shall prevail.
Subject to contract
The terms Vendor and Purchaser shall, where the context requires, be deemed to refer to Lessee and Lessor respectively.
Mortgage calculator
Monthly repayment
£1,250 per month
Whole of market comparison
70+ lenders and 10,000+ products
The monthly repayments provided are estimates and should be used as a guide only. The actual amount you can borrow will depend on your personal financial situation and subject to a full application. For a more precise estimate, please use the Mojo mortgage calculator. Your home or property may be repossessed if you do not keep up repayments on your mortgage.



.png)