Guide price
£950,000
4 bed detached house for saleQ Gardens, Q Gardens EH30
4 beds
4 baths
1 reception
Just added
New home
Chain free
Freehold
About this property
About This Property
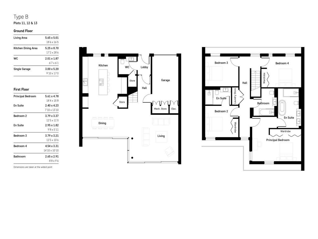
Type B homes are four-bedroom linked villas, each with both front and rear garden spaces.
The ground floor opens with an entrance lobby, featuring a WC and storage area, leading into a central hall. From here, you have direct access to a spacious open-plan living and dining area, enhanced by floor-to-ceiling glazing that overlooks the rear garden, along with two sets of patio doors opening onto a terrace. The hall also connects internally to the single garage.
The dining area flows seamlessly into a contemporary kitchen, complete with a large island/breakfast bar and a wide selection of designer cabinetry. Integrated Siemens appliances include a main oven, a combination oven/microwave, warming drawer, fridge freezer, wine cooler, hob with downdraft extractor, and dishwasher. A Bosch washing machine and a separate tumble dryer are conveniently located in the upstairs laundry store.
Upstairs, there are four bedrooms. The principal bedroom benefits from a luxurious en-suite bathroom, while bedroom two has its own en-suite shower room. A separate family bathroom serves the remaining bedrooms.
Throughout the home, durable and stylish spc flooring is used, with carpets in the bedrooms and large-format porcelain tiles in the bathrooms and en-suites. Underfloor heating runs throughout, powered by an energy-efficient air source heat pump, ensuring consistent and comfortable warmth.
Type B homes are four-bedroom linked villas, each with both front and rear garden spaces.
The ground floor opens with an entrance lobby, featuring a WC and storage area, leading into a central hall. From here, you have direct access to a spacious open-plan living and dining area, enhanced by floor-to-ceiling glazing that overlooks the rear garden, along with two sets of patio doors opening onto a terrace. The hall also connects internally to the single garage.
The dining area flows seamlessly into a contemporary kitchen, complete with a large island/breakfast bar and a wide selection of designer cabinetry. Integrated Siemens appliances include a main oven, a combination oven/microwave, warming drawer, fridge freezer, wine cooler, hob with downdraft extractor, and dishwasher. A Bosch washing machine and a separate tumble dryer are conveniently located in the upstairs laundry store.
Upstairs, there are four bedrooms. The principal bedroom benefits from a luxurious en-suite bathroom, while bedroom two has its own en-suite shower room. A separate family bathroom serves the remaining bedrooms.
Throughout the home, durable and stylish spc flooring is used, with carpets in the bedrooms and large-format porcelain tiles in the bathrooms and en-suites. Underfloor heating runs throughout, powered by an energy-efficient air source heat pump, ensuring consistent and comfortable warmth.
Mortgage calculator
Monthly repayment
£4,752 per month
Whole of market comparison
70+ lenders and 10,000+ products
The monthly repayments provided are estimates and should be used as a guide only. The actual amount you can borrow will depend on your personal financial situation and subject to a full application. For a more precise estimate, please use the Mojo mortgage calculator. Your home or property may be repossessed if you do not keep up repayments on your mortgage.



.png)