£1,727,524
€2,000,000
Land for saleAyia Napa, Famagusta, Cyprus
1 reception
Unfurnished
About this property
Listing id:
Online viewing available. Request details for a live walkthrough.
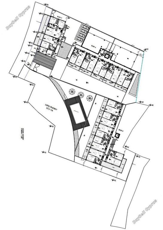
Online viewing available.\nThis is an incredible opportunity to invest in the sought-after tourist destination of Ayia Napa. Located in a prime position within a thriving community, this plot boasts a generous area of 4056m2 with a building permit already secured for the construction of twenty-nine modern and luxurious apartments, twenty-one of which are one-bedroom with 55m2 enclosed space and 10m2 covered veranda each one and eight of which are two-bedrooms with 80m2 enclosed space and 15m2 covered veranda. Additionally, it includes 35 parking spaces. With a building zone of ΚΓΥ1, height of 8.3 meters, and two storeys, this plot has a coverage of 35% and density of 60%, making it perfect for a variety of development projects. Close to all amenities and attractions, this plot is situated in a prime location within the bustling tourist zone of Ayia Napa. Furthermore, it is only a couple of minutes' walking to the beautiful beaches. Don't miss out on this rare and lucrative investment opportunity - secure your future today with this outstanding plot.
Building Coefficients:
Building Zone: ΚΓΥ1
Height: 8.3 meters
Storeys: 2
Coverage: 35%
Density: 60%
You can tour this property via live video chat. We perform video walkthroughs via your favorite mobile chat app (Whatsapp or Viber). Request a viewing now.
Building Coefficients:
Building Zone: ΚΓΥ1
Height: 8.3 meters
Storeys: 2
Coverage: 35%
Density: 60%
You can tour this property via live video chat. We perform video walkthroughs via your favorite mobile chat app (Whatsapp or Viber). Request a viewing now.

.png)