£751,541
€850,000
Land for saleRua Da Mãe De Água, Pegões, Montijo
About this property
Reference: TER_4060
Total area: 108508m2
Useful area: 108508m2
Plot area: 108508m2
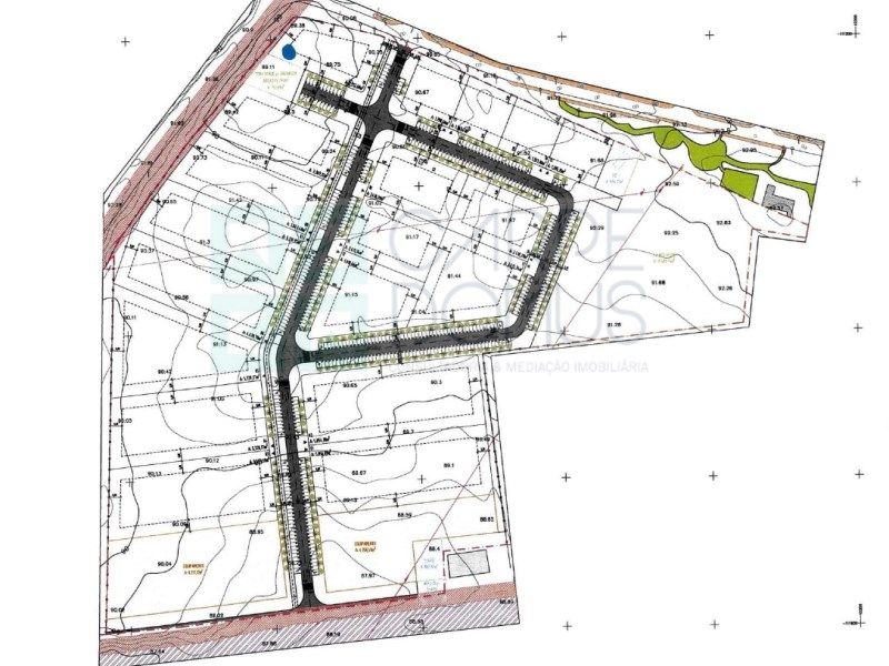
Excellent plot of land with 108,508m2 (110,690m2 in dgt and 116,748 in pip) with pip approved for the construction of 34,931m2 in Warehouses, Commerce and/or Services in 19 independent lots with a total area of 59,381m2.
Maximum total implantation area of 23,752.40m2. Maximum height of the building is 9 meters. Lots 16 to 19 will be deployed in band and the remaining lots are isolated, with a minimum distance from the lot limit of 9 meters.
Privileged location in front of the EN10 and the train station (goods and passengers) of Pegões-Gare.
It is currently unoccupied or unused and with a tree and shrub cover predominantly consisting of eucalyptus, pine trees and an undercover of bushes, presenting a predominantly trapezoidal shape with the largest dimension - about 380 m - north orientation, and the smallest dimension - about 283 m - with a south orientation.
Apart from the approved pip, another use may be given, according to the pdm.
The area is currently classified by the current pdm as a level IV mixed housing urbanizable (Pegões-Gare) for which parameters of gross density of 20 dwellings/ha and net density (applied to areas exclusively intended for housing or other complementary urban uses) of 30 dwellings/ha are indicated. These values will in turn translate into parameters of maximum land occupation of 0.25 and use of 0.45 and a maximum number of floors of three. However, and notwithstanding, considering the location of the land in a close territorial perspective, relative to Pegões-Gare, as well as in a broad territorial perspective, relative to the municipal territory, to that of the Setúbal Peninsula and even to that of the aml, it is noted that it has a very privileged situation in terms of access and logistics.
Rustic land with 108,508 m2, located to the south of Pegões-Gare between this nucleus and the railway, facing the West with the en 10 and to the South with the South railway line and an unpaved street that connects to Largo José Ribeiro Santana, to the North by a green area and Rua da Mãe de Água that gives access to the Pegões-Gare agglomeration and the EN10 and to the East with a rustic building, school equipment and part of Av. April 25.
Excellent road access in front of the N10,2 km from the EN4, a distance of less than 5 km from the A13 motorway, about 9 km from the A6 motorway to Spain and the A2 Algarve/Lisbon/Setúbal motorway, 53 km from the city of Montijo, Vasco da Gama Bridge and Airport, and also about 36 km from the Port of Setúbal. On the other hand, we have the Alentejo - Lisbon railway. It seems necessary to conclude that it has a unique local, municipal, and even metropolitan accessibility, calling for the possibility of its decisive valorisation, indisputably urban, but business.
Come and visit, take advantage of this opportunity, and develop your real estate project!
Energy Rating: Exempt
#ref:TER_4060
Surroundings
Highway
School
Green areas
Pharmacy
Police
Public Transport
Areas
Gross Area: 108508
Land Area: 108508
Net Area: 108508
Maximum total implantation area of 23,752.40m2. Maximum height of the building is 9 meters. Lots 16 to 19 will be deployed in band and the remaining lots are isolated, with a minimum distance from the lot limit of 9 meters.
Privileged location in front of the EN10 and the train station (goods and passengers) of Pegões-Gare.
It is currently unoccupied or unused and with a tree and shrub cover predominantly consisting of eucalyptus, pine trees and an undercover of bushes, presenting a predominantly trapezoidal shape with the largest dimension - about 380 m - north orientation, and the smallest dimension - about 283 m - with a south orientation.
Apart from the approved pip, another use may be given, according to the pdm.
The area is currently classified by the current pdm as a level IV mixed housing urbanizable (Pegões-Gare) for which parameters of gross density of 20 dwellings/ha and net density (applied to areas exclusively intended for housing or other complementary urban uses) of 30 dwellings/ha are indicated. These values will in turn translate into parameters of maximum land occupation of 0.25 and use of 0.45 and a maximum number of floors of three. However, and notwithstanding, considering the location of the land in a close territorial perspective, relative to Pegões-Gare, as well as in a broad territorial perspective, relative to the municipal territory, to that of the Setúbal Peninsula and even to that of the aml, it is noted that it has a very privileged situation in terms of access and logistics.
Rustic land with 108,508 m2, located to the south of Pegões-Gare between this nucleus and the railway, facing the West with the en 10 and to the South with the South railway line and an unpaved street that connects to Largo José Ribeiro Santana, to the North by a green area and Rua da Mãe de Água that gives access to the Pegões-Gare agglomeration and the EN10 and to the East with a rustic building, school equipment and part of Av. April 25.
Excellent road access in front of the N10,2 km from the EN4, a distance of less than 5 km from the A13 motorway, about 9 km from the A6 motorway to Spain and the A2 Algarve/Lisbon/Setúbal motorway, 53 km from the city of Montijo, Vasco da Gama Bridge and Airport, and also about 36 km from the Port of Setúbal. On the other hand, we have the Alentejo - Lisbon railway. It seems necessary to conclude that it has a unique local, municipal, and even metropolitan accessibility, calling for the possibility of its decisive valorisation, indisputably urban, but business.
Come and visit, take advantage of this opportunity, and develop your real estate project!
Energy Rating: Exempt
#ref:TER_4060
Surroundings
Highway
School
Green areas
Pharmacy
Police
Public Transport
Areas
Gross Area: 108508
Land Area: 108508
Net Area: 108508



.png)