£310,091
(€528/sq. ft)
€359,000
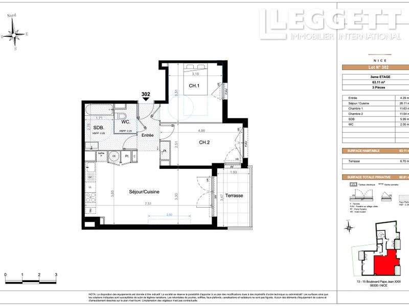
2 bed apartment for saleNice, Alpes-Maritimes, Provence-Alpes-Côte D'azur
2 beds
1 bath
1 reception
679 sq. ft
About this property
Coastal
0-2 km to amenities
50 km or less to airport
50 km or less to ferry
Electric Heaters
New Build
City property
A quality habitat for some privileged
"Villa Gabriel" is a residence on a human scale, of only 15 units which fully engages with its nf Habitat hqe certification, thus providing quality and higher performance services: Thermal, acoustic, brightness, charges economy, quality of indoor air, functionality, safety and respect for the environment.
"Villa Gabriel" offers a resolutely contemporary and elegant architecture, thanks in particular to a use of modern materials such as glass and aluminum. Pumped by generous bow-windows and spacious balconies, its design ensures harmonious insertion in its environment.
This residence offers an intimate atmosphere in the heart of the city, gaining a level of quality services. An exceptional residential framework pledge of a lasting investment.
An authentic, ideal and privileged district
Located a few minutes from downtown Nice, the residential area of Saint Jean d'Angély, is authentic, ideal and sought after. Take advantage of restaurants, business, shops, and local services. The district also has several establishments accessible on foot such as the School-College Blanche de Castille, the Saint-Jean d'Angély university campus, the journalism school, a cinema, a pharmacy, leisure and sports equipment, as well as that the vinaigrier park. Transport, tram and main main road axes are easily accessible in a few minutes.
Life spaces
• Energy efficient residence and environmentally friendly
• Electric roller shutters in all main parts
• Exclusive, intimate and secure location
• East and West exhibitions and beautiful openings promoting brightness
• Large Bow-Windows or Large Balconies
• Quality materials carefully selected
• Optimized thermal and acoustic comfort • Functional, pleasant and
vegetated
"Villa Gabriel" is a residence on a human scale, of only 15 units which fully engages with its nf Habitat hqe certification, thus providing quality and higher performance services: Thermal, acoustic, brightness, charges economy, quality of indoor air, functionality, safety and respect for the environment.
"Villa Gabriel" offers a resolutely contemporary and elegant architecture, thanks in particular to a use of modern materials such as glass and aluminum. Pumped by generous bow-windows and spacious balconies, its design ensures harmonious insertion in its environment.
This residence offers an intimate atmosphere in the heart of the city, gaining a level of quality services. An exceptional residential framework pledge of a lasting investment.
An authentic, ideal and privileged district
Located a few minutes from downtown Nice, the residential area of Saint Jean d'Angély, is authentic, ideal and sought after. Take advantage of restaurants, business, shops, and local services. The district also has several establishments accessible on foot such as the School-College Blanche de Castille, the Saint-Jean d'Angély university campus, the journalism school, a cinema, a pharmacy, leisure and sports equipment, as well as that the vinaigrier park. Transport, tram and main main road axes are easily accessible in a few minutes.
Life spaces
• Energy efficient residence and environmentally friendly
• Electric roller shutters in all main parts
• Exclusive, intimate and secure location
• East and West exhibitions and beautiful openings promoting brightness
• Large Bow-Windows or Large Balconies
• Quality materials carefully selected
• Optimized thermal and acoustic comfort • Functional, pleasant and
vegetated



.png)