£437,662
€495,000
Land for sale07400 Alcúdia, Balearic Islands, Spain
4 baths
Unfurnished
About this property
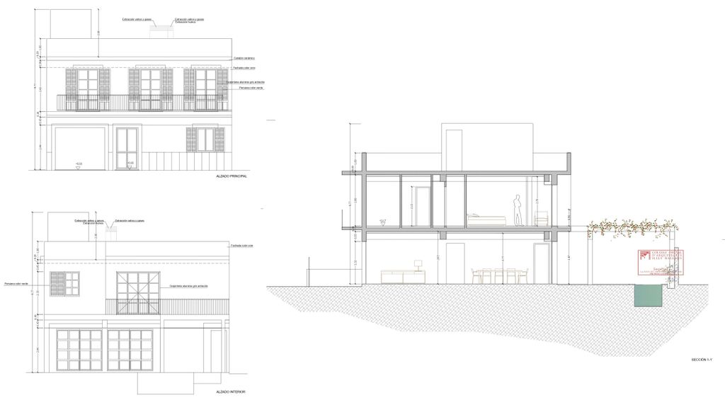
House Project Of 198 m² With Pool, With Building Permit In Alcudia
A unique project for sale in Alcúdia, ideal for investors. Plot of 200 m2, built area of 198 m2. With a strategic location and the construction permit already included, this property offers a high potential for profitability.
Project Features: 3 double bedrooms with balconies, including a master suite with walk-in closet and private terrace. 4 bathrooms designed for maximum comfort. Upper terrace ideal for enjoying the views. Spacious terrace and garden with private pool. Private parking for 1 car and several motorcycles. Fireplace, adding warmth to the design.
Advantages for Investors: Flexibility to customize the project according to your needs. Possibility of adding one more floor to expand the construction. Price includes land, project, and permit (fees paid and architect included).
Contact us for more information!
A unique project for sale in Alcúdia, ideal for investors. Plot of 200 m2, built area of 198 m2. With a strategic location and the construction permit already included, this property offers a high potential for profitability.
Project Features: 3 double bedrooms with balconies, including a master suite with walk-in closet and private terrace. 4 bathrooms designed for maximum comfort. Upper terrace ideal for enjoying the views. Spacious terrace and garden with private pool. Private parking for 1 car and several motorcycles. Fireplace, adding warmth to the design.
Advantages for Investors: Flexibility to customize the project according to your needs. Possibility of adding one more floor to expand the construction. Price includes land, project, and permit (fees paid and architect included).
Contact us for more information!



.png)