£193,194
€219,000
Land for saleLarnaca, Livadia
About this property
Walking distance to beach
Near bus route
Near amenities
Mountain view
Investment opportunity
Easy access to main roads
Easy access to highway
Prime land
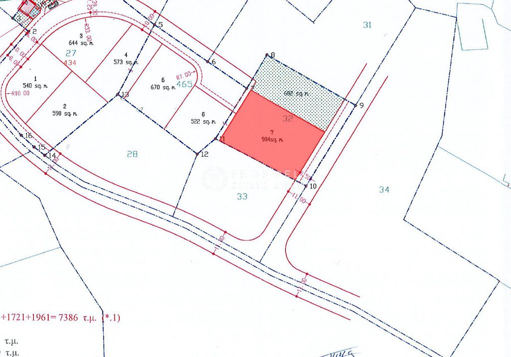
An exceptional investment opportunity in one of the most sought-after areas of Livadhia Mnciipality. This 984 sq.m. Residential plot has a continious location, next to a green area and a pedestrian walkway, with a frontage of 30 meters and a depth of 39 meters, offering flexible design options for development with a north, east and west orientation.
Situated within Planning Zone Ka6, the plot benefits from a 90% building density, 50% coverage, and permission for up to 2 floors, making it an ideal choice for the development of an apartment complex or a private residence of high specifications.
Its location combines convenience with investment potential, offering proximity to schools, shops, and services, while maintaining excellent connectivity to Larnaca town and the airport.
This plot represents a unique opportunity for both private buyers and developers looking to capitalize on the growing demand for quality housing in Aradippou.
The plot fall within the followings details:
Residential Zone: Ka6, Building Density: 90%, Building Coverage: 50%, Maximum Height: 10 m, Floors: 2
The extent of the plot is 984 sq.m..
Situated within Planning Zone Ka6, the plot benefits from a 90% building density, 50% coverage, and permission for up to 2 floors, making it an ideal choice for the development of an apartment complex or a private residence of high specifications.
Its location combines convenience with investment potential, offering proximity to schools, shops, and services, while maintaining excellent connectivity to Larnaca town and the airport.
This plot represents a unique opportunity for both private buyers and developers looking to capitalize on the growing demand for quality housing in Aradippou.
The plot fall within the followings details:
Residential Zone: Ka6, Building Density: 90%, Building Coverage: 50%, Maximum Height: 10 m, Floors: 2
The extent of the plot is 984 sq.m..



.png)