£302,317
(€40/sq. ft)
€350,000
Land for saleSão Brás De Alportel, São Brás De Alportel, São Brás De Alportel
8,805 sq. ft
About this property
Atm Machine
Banks
Bars
Bus stop
Camping
Plot for construction in São Brás de Alportel!
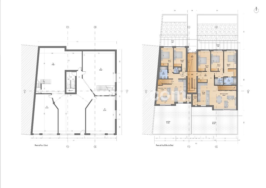
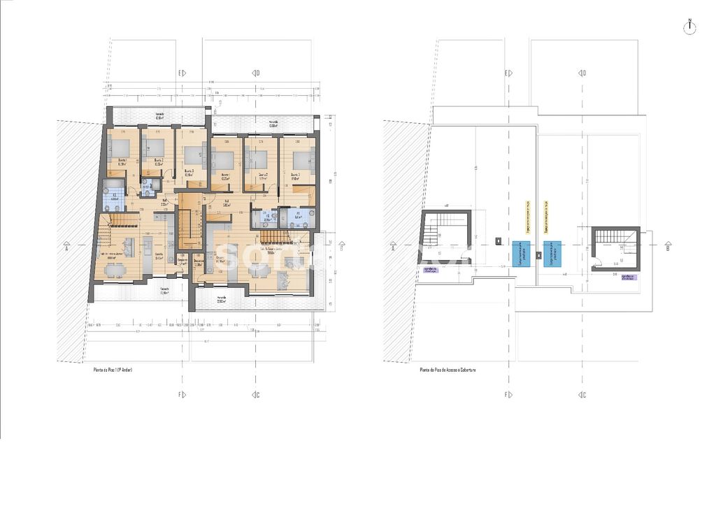
This plot, with 2,180 m2, has an approved project and a paid construction license.
The project consists of an urban building with four apartments: One two-bedroom apartment (T2) and three three-bedroom apartments (T3). Each unit offers pleasant areas, a modern layout and design, and excellent balconies and private terraces of generous dimensions to enjoy the outdoor space.
It also includes a garden area with a communal swimming pool and spacious private box garages for each unit.
Located a short distance from the town of São Brás de Alportel, this plot is in a quiet area with excellent access and all amenities just a few minutes away.
An excellent project with great potential and an attractive return on investment.
Book your visit today!
This plot, with 2,180 m2, has an approved project and a paid construction license.
The project consists of an urban building with four apartments: One two-bedroom apartment (T2) and three three-bedroom apartments (T3). Each unit offers pleasant areas, a modern layout and design, and excellent balconies and private terraces of generous dimensions to enjoy the outdoor space.
It also includes a garden area with a communal swimming pool and spacious private box garages for each unit.
Located a short distance from the town of São Brás de Alportel, this plot is in a quiet area with excellent access and all amenities just a few minutes away.
An excellent project with great potential and an attractive return on investment.
Book your visit today!



.png)