£140,866
(€81/sq. ft)
€160,000
Land for saleAlbufeira, Albufeira E Olhos De Água, Albufeira
1,970 sq. ft
Just added
About this property
Access point to expressway
Access point to highway
Art Gallery
Atm Machine
Banks
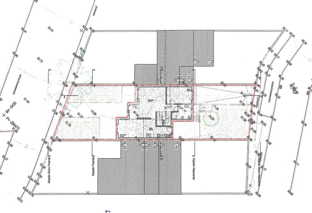
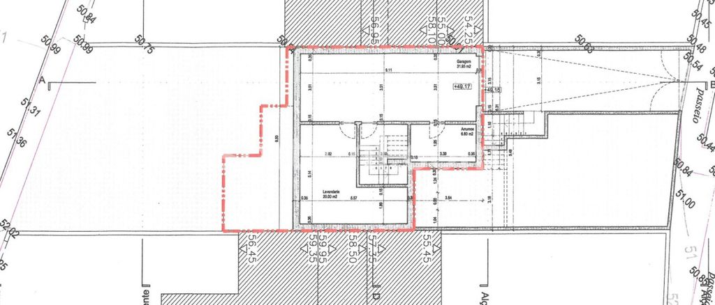
Land for Construction with Project – Olhos de Água, Albufeira
We present an excellent investment opportunity in Olhos de Água, one of the most sought-after areas in the municipality of Albufeira. This land offers the perfect setting for those looking to build a home with all the comfort and quality of life, in a peaceful environment and close to the stunning beaches of the Algarve.
The plot comes with an project for the construction of a three-story villa. The project features contemporary architecture, with spacious interiors, natural light, generous outdoor areas, and a functional layout designed to provide maximum comfort.
The location is one of the main highlights: Set in a quiet residential area, yet just minutes away from all essential services, shops, restaurants, and the famous beaches of Olhos de Água and Falésia. It is the perfect spot for a permanent residence, holiday home, or even a tourist investment, given the high demand in the region.
If you are looking for a plot with potential, an excellent location, and an already approved project to build the home of your dreams, this is an unmissable opportunity.
Book your visit now!
We present an excellent investment opportunity in Olhos de Água, one of the most sought-after areas in the municipality of Albufeira. This land offers the perfect setting for those looking to build a home with all the comfort and quality of life, in a peaceful environment and close to the stunning beaches of the Algarve.
The plot comes with an project for the construction of a three-story villa. The project features contemporary architecture, with spacious interiors, natural light, generous outdoor areas, and a functional layout designed to provide maximum comfort.
The location is one of the main highlights: Set in a quiet residential area, yet just minutes away from all essential services, shops, restaurants, and the famous beaches of Olhos de Água and Falésia. It is the perfect spot for a permanent residence, holiday home, or even a tourist investment, given the high demand in the region.
If you are looking for a plot with potential, an excellent location, and an already approved project to build the home of your dreams, this is an unmissable opportunity.
Book your visit now!



.png)