£263,016
(€464/sq. ft)
€304,500
2 bed apartment for saleSonnenburgerstrasse 55, Berlin, Brandenburg And Berlin, Germany
2 beds
1 bath
657 sq. ft
About this property
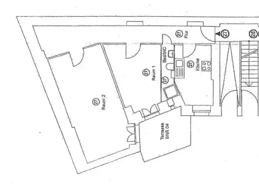
This well-designed 2-room apartment with approximately 61 m² of living space is located on the ground floor of the quiet side wing of a lovingly preserved turn-of-the-century building. A true gem in the heart of Prenzlauer Berg – just steps from Mauerpark.
Apartment
The apartment impresses with its classic period character and pleasant layout:
Spacious living room with a window overlooking the quiet courtyard
Quiet bedroom
Separate kitchen
Bathroom with shower and window
Thanks to the large windows, the apartment is bright and welcoming, offering a pleasant living environment.
The apartment has been rented since 2007. Termination of the tenancy due to owner occupancy is possible; the statutory notice period is 9 months. This makes the property suitable both as an investment property and with the potential for owner-occupancy.
Building
The period building complex, constructed around 1902, impresses with its architectural elegance and its very well-maintained overall appearance. As part of a comprehensive renovation, a new heating system, a modern wastewater system, improved insulation, and
a converted attic (2023) were recently installed.
These measures contribute to an optimized energy balance and contemporary living comfort. Both the building and the courtyard are in excellent condition.
Apartment
The apartment impresses with its classic period character and pleasant layout:
Spacious living room with a window overlooking the quiet courtyard
Quiet bedroom
Separate kitchen
Bathroom with shower and window
Thanks to the large windows, the apartment is bright and welcoming, offering a pleasant living environment.
The apartment has been rented since 2007. Termination of the tenancy due to owner occupancy is possible; the statutory notice period is 9 months. This makes the property suitable both as an investment property and with the potential for owner-occupancy.
Building
The period building complex, constructed around 1902, impresses with its architectural elegance and its very well-maintained overall appearance. As part of a comprehensive renovation, a new heating system, a modern wastewater system, improved insulation, and
a converted attic (2023) were recently installed.
These measures contribute to an optimized energy balance and contemporary living comfort. Both the building and the courtyard are in excellent condition.


.png)