£731,266
(€256/sq. ft)
€845,000
Villa for saleYeroskipou, Cyprus
2 baths
4 receptions
3,305 sq. ft
Furnished
New home
About this property
Sea View
Mountain View
En suite
Air conditioning
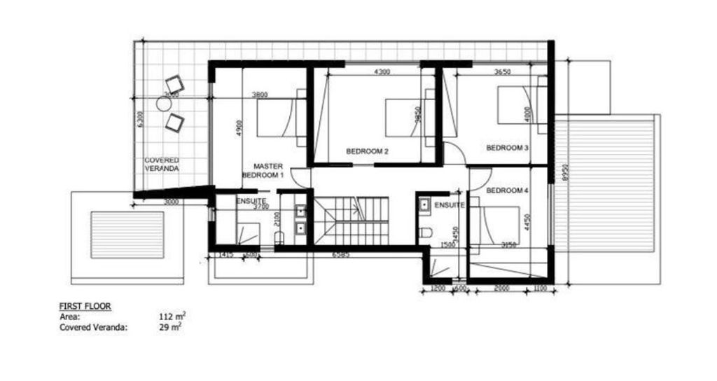
4 Bedrooms House / Villa In Geroskipou, Paphos
New project of 17 luxury villas located in the thriving village of Geroskipou in Paphos. Renowned for its charming character and friendly atmosphere, Geroskipou offers a convenient location with easy access to other cities and a host of amenities.
It is a short drive away from an International school, shops, and the highway, ensuring utmost convenience for residents. Moreover, the nearest blue flag beach is just a leisurely 3-minute drive away, granting residents the opportunity to indulge in the beauty of the Mediterranean coast.
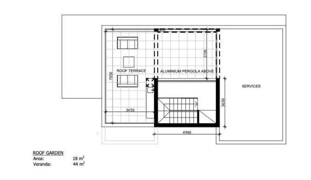
These contemporary villas have been thoughtfully designed to offer spacious living spaces and stunning panoramic sea views from the roof garden. This villa comprises 4 bedrooms and 4 bathrooms, providing ample space for comfortable living. Equipped with a fully fitted kitchen, wardrobes, vrv concealed cooling, and underfloor heating, these properties are tailored to meet your every need. Additionally, there is include a private pool in each villa, enhancing your outdoor living experience. The villa is delivered fully furnished and key ready.
Key Features
High Ceilings
Italian floors
Thermal insulation
Energy efficiency aluminium
Water pressure system
Provisions for photovoltaic system
Internal and external roof garden area
Built
in kitchen and wardrobes
Underfloor heating
vrv for cooling
Walk
in showers
Provision for electric car charger
Electric gates
Alarm system
BBQ area
Covered parking area
Furniture and pool 4x12 are included
Completion December 2023
New project of 17 luxury villas located in the thriving village of Geroskipou in Paphos. Renowned for its charming character and friendly atmosphere, Geroskipou offers a convenient location with easy access to other cities and a host of amenities.
It is a short drive away from an International school, shops, and the highway, ensuring utmost convenience for residents. Moreover, the nearest blue flag beach is just a leisurely 3-minute drive away, granting residents the opportunity to indulge in the beauty of the Mediterranean coast.
These contemporary villas have been thoughtfully designed to offer spacious living spaces and stunning panoramic sea views from the roof garden. This villa comprises 4 bedrooms and 4 bathrooms, providing ample space for comfortable living. Equipped with a fully fitted kitchen, wardrobes, vrv concealed cooling, and underfloor heating, these properties are tailored to meet your every need. Additionally, there is include a private pool in each villa, enhancing your outdoor living experience. The villa is delivered fully furnished and key ready.
Key Features
High Ceilings
Italian floors
Thermal insulation
Energy efficiency aluminium
Water pressure system
Provisions for photovoltaic system
Internal and external roof garden area
Built
in kitchen and wardrobes
Underfloor heating
vrv for cooling
Walk
in showers
Provision for electric car charger
Electric gates
Alarm system
BBQ area
Covered parking area
Furniture and pool 4x12 are included
Completion December 2023



.png)