£1,523,312
(Fr1,420/sq. ft)
Fr1,590,000
Studio for saleLausanne, Lausanne, CH
4 receptions
1,119 sq. ft
About this property
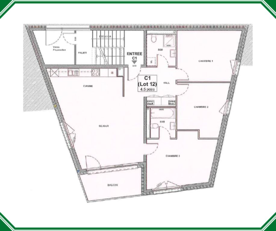
The apartment is organized around a beautiful living room of about 35m2 where the kitchen open to the living room offers a bright and pleasant setting on a daily basis. A south-facing balcony of 8m2 extends the room.
The property also has three bedrooms including 1 comfortable master suite as well as a shower room with the necessary connections for the installation of a washing/drying column.
Designed for uncompromising daily comfort, the residences offer neat common areas, private cellars, room for bicycles/strollers and a diy area.
Outdoor parking spaces in addition between chf 30,000 and chf 40,000.
Families, couples or young seniors will find here a harmonious living environment, combining modernity, serenity and elegance, in the heart of a popular district of Lausanne.
The property also has three bedrooms including 1 comfortable master suite as well as a shower room with the necessary connections for the installation of a washing/drying column.
Designed for uncompromising daily comfort, the residences offer neat common areas, private cellars, room for bicycles/strollers and a diy area.
Outdoor parking spaces in addition between chf 30,000 and chf 40,000.
Families, couples or young seniors will find here a harmonious living environment, combining modernity, serenity and elegance, in the heart of a popular district of Lausanne.



.png)