From
£38,900 pa
(£33.00/sq. ft. pa)
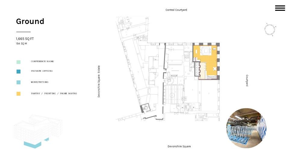
Office to letBishopsgate, Liverpool Street EC2M
From 300 - 12,000 sq. ft
Available immediately
Furnished or unfurnished
About this property
📞 Call To Arrange Your Viewing
Breakout Space
Meeting rooms
Showers
Beautifully Reimagined Workspace In The Heart Of Liverpool Street. Fully Equipped
** Call Now For Arrange Viewing **
** Call Now For Arrange Viewing **



.png)