Non quoting
Industrial to letHighfield Road, Little Hulton, Manchester M38
7,841 sq. ft
About this property
Secure plot
Suitable for a variety of uses
Approx. 1 mile to Junction 4 M61
Description
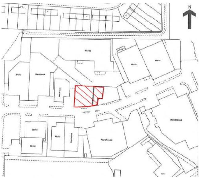
The property comprises a secure open storage / yard plot which is fully fenced and gated. The plot is ideal for:
• Open storage
• Trailer parking
• Vehicle parking
• Container storage
• Caravan storage
• Yard area
Location
The site is situated on Highfield Road Industrial Estate and is accessed via Manchester Road West (A6) which provides direct access to Junction 4 of the M61 which is approximately 1 mile to the north west of the property.
Terms
The site is available by way of a new full repairing and insuring lease on terms to be agreed.
Anti-Money Laundering
In accordance with aml Regulations, we are obliged to verify the identity and the source of funds for the potential tenant / purchaser, once a let / sale has been agreed and prior to instructing solicitors.
Accommodation
The site is approximately 0.18 acres (0.07 hectares).
Rental
Available upon application.
VAT
All rents and prices quoted are exclusive of VAT but may be liable for VAT at the prevailing rate.
The property comprises a secure open storage / yard plot which is fully fenced and gated. The plot is ideal for:
• Open storage
• Trailer parking
• Vehicle parking
• Container storage
• Caravan storage
• Yard area
Location
The site is situated on Highfield Road Industrial Estate and is accessed via Manchester Road West (A6) which provides direct access to Junction 4 of the M61 which is approximately 1 mile to the north west of the property.
Terms
The site is available by way of a new full repairing and insuring lease on terms to be agreed.
Anti-Money Laundering
In accordance with aml Regulations, we are obliged to verify the identity and the source of funds for the potential tenant / purchaser, once a let / sale has been agreed and prior to instructing solicitors.
Accommodation
The site is approximately 0.18 acres (0.07 hectares).
Rental
Available upon application.
VAT
All rents and prices quoted are exclusive of VAT but may be liable for VAT at the prevailing rate.



.png)