£21,500 pa
(£33.08/sq. ft. pa)
Retail premises to letHornsey Road, Islington, London N19
650 sq. ft
About this property
Good Location
New Lease
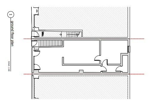
Former eatery approx 650 sq.ft.
Frontage 12ft approx widening to 16ft approx. Depth 47ft approx.
Kitchen/cooking area with further storage and w.c to rear.
No rear access.
Location
The property is located on Hornsey Road (A103) close to the junction with Tollington Park and within easy access of the A1 Holloway Road, Seven Sisters Road and major road networks. Holloway, Finsbury Park, Upper Holloway and Arsenal Underground Stations are nearby.
Business Rates
Rateable value - £10,500 (as taken from )
This is not the amount you will pay. The rateable value is used to calculate your rates bill.
Please refer to the Local Authority for more information on rates
Legal Costs
Ingoing tenant to bear both sides reasonable related legal costs.
Tenure
By way of new fr and I Lease with periodic mechanisms for upward only rent reviews
EPC
Energy Rating 46 B - Valid until January 2029
Viewing
Via the owners sole agents pss Commercial.
VAT
Under the Finance Acts 1989 and 1997 VAT may be levied on the rental price. We recommend that the prospective tenants establish the VAT implications before entering into any agreement.
Frontage 12ft approx widening to 16ft approx. Depth 47ft approx.
Kitchen/cooking area with further storage and w.c to rear.
No rear access.
Location
The property is located on Hornsey Road (A103) close to the junction with Tollington Park and within easy access of the A1 Holloway Road, Seven Sisters Road and major road networks. Holloway, Finsbury Park, Upper Holloway and Arsenal Underground Stations are nearby.
Business Rates
Rateable value - £10,500 (as taken from )
This is not the amount you will pay. The rateable value is used to calculate your rates bill.
Please refer to the Local Authority for more information on rates
Legal Costs
Ingoing tenant to bear both sides reasonable related legal costs.
Tenure
By way of new fr and I Lease with periodic mechanisms for upward only rent reviews
EPC
Energy Rating 46 B - Valid until January 2029
Viewing
Via the owners sole agents pss Commercial.
VAT
Under the Finance Acts 1989 and 1997 VAT may be levied on the rental price. We recommend that the prospective tenants establish the VAT implications before entering into any agreement.



.png)