£120,000 pa
(£44.78/sq. ft. pa)
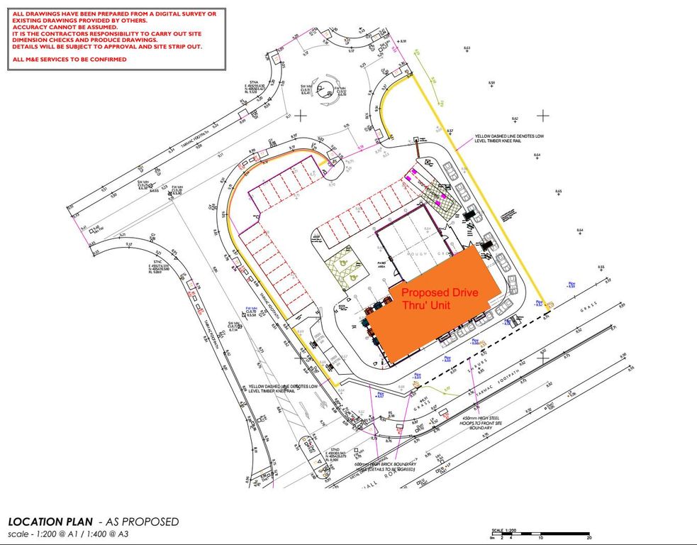
Retail premises to letDrive Thru' Opportunity, Wheatley Hall Road, Doncaster DN2
2,680 sq. ft
EPC Rating: F
About this property
2,680 sqft Drive Thru Restaurant with parking
Costa Drive Thru open adjacent
Located on the busy Wheatley Hall Road - surrounded by retail and leisure operators
Approx. 24,500 annual average daily flow of vehicles (DforT 2022)
10 minute drive time of 146,000 people
Estimated Rates Payable: £41472
Description
An existing single storey Taco Bell Drive Thru' restaurant, excluding the Burger King demise, located adjacent to Costa Drive thru' on the very busy Wheatley Hall Road.
Location
Located on Wheatley Hall Road, 2 miles north east of Doncaster Town Centre. Doncaster is the second largest settlement in South Yorkshire after Sheffield with a population of 113,566.
The scheme is situated opposite the highly successful 250,000 sq ft The Wheatley Centre Shopping Park (Next, M&S, Matalan, Boots, tk Maxx).
Wheatley Hall Road is one of the main arterial roads into Doncaster from the North/East with an average daily vehicle count of 24,500.
The opportunity forms part of a complete redevelopment of the overall 112 acre site in an established commercial and residential location, fronting directly on to Wheatley Hall Road (A630).
Specifications
The unit will be taken as seen, the Vendor will not be stripping out the unit back to shell, the Vendor will remove all Taco Bell branded paraphernalia such as cups plates etc, the racking, signage, loose fixtures and fittings including furniture. Exact list of what will be removed shall be made available.
Restrictions
The site does have the following restrictions - not to let to Starbucks, Caffe Nero, Greggs or Tim Hortons.
Vacant Possession
Available immediately.
An existing single storey Taco Bell Drive Thru' restaurant, excluding the Burger King demise, located adjacent to Costa Drive thru' on the very busy Wheatley Hall Road.
Location
Located on Wheatley Hall Road, 2 miles north east of Doncaster Town Centre. Doncaster is the second largest settlement in South Yorkshire after Sheffield with a population of 113,566.
The scheme is situated opposite the highly successful 250,000 sq ft The Wheatley Centre Shopping Park (Next, M&S, Matalan, Boots, tk Maxx).
Wheatley Hall Road is one of the main arterial roads into Doncaster from the North/East with an average daily vehicle count of 24,500.
The opportunity forms part of a complete redevelopment of the overall 112 acre site in an established commercial and residential location, fronting directly on to Wheatley Hall Road (A630).
Specifications
The unit will be taken as seen, the Vendor will not be stripping out the unit back to shell, the Vendor will remove all Taco Bell branded paraphernalia such as cups plates etc, the racking, signage, loose fixtures and fittings including furniture. Exact list of what will be removed shall be made available.
Restrictions
The site does have the following restrictions - not to let to Starbucks, Caffe Nero, Greggs or Tim Hortons.
Vacant Possession
Available immediately.



.png)