Non quoting
Retail premises to letUnit 20 Cavendish Walk, Derby Road, Huyton L36
28,000 sq. ft
About this property
Description
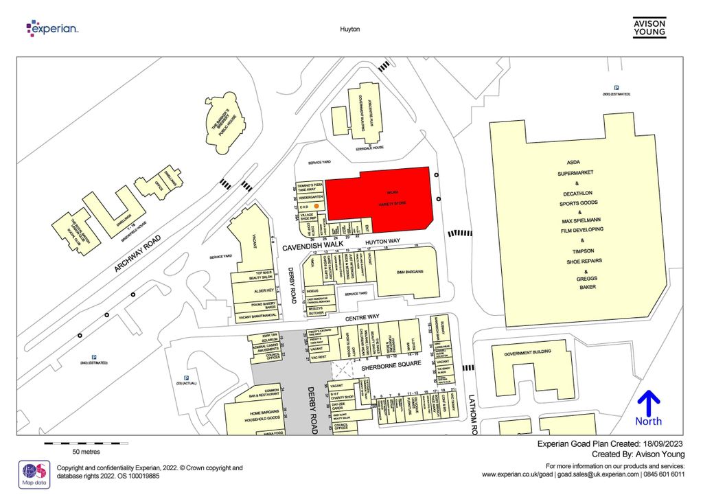
Available for immediate occupation (subject to vacant possession The subject property comprises fully fitted retail accommodation occupying a highly prominent roadside location, with dedicated servicing to the rear elevation and lift access to upper floors. Parking is available onsite via an undercroft car park with capacity for up to 76 vehicles. Free car parking is also available nearby at Archway Road (100 spaces) and Asda (300 spaces) immediately adjacent.
Location
Located within a busy high street retail location.
Local Authority
Knowsley
Services And Planning
The premises falls within Class E of the Town & Country Planning (Use Classes) Order 2020. Interested parties should carry out their own due diligence in this regard.
Available for immediate occupation (subject to vacant possession The subject property comprises fully fitted retail accommodation occupying a highly prominent roadside location, with dedicated servicing to the rear elevation and lift access to upper floors. Parking is available onsite via an undercroft car park with capacity for up to 76 vehicles. Free car parking is also available nearby at Archway Road (100 spaces) and Asda (300 spaces) immediately adjacent.
Location
Located within a busy high street retail location.
Local Authority
Knowsley
Services And Planning
The premises falls within Class E of the Town & Country Planning (Use Classes) Order 2020. Interested parties should carry out their own due diligence in this regard.



.png)