Non quoting
Industrial to letBlock E- Design And Build, Abbots Way, Lune Industrial Estate, Lancaster LA1
From 30,000 - 75,000 sq. ft
About this property
Design and Build
Esg Credentials
Self contained yard
Grade A
Build to suit
Description
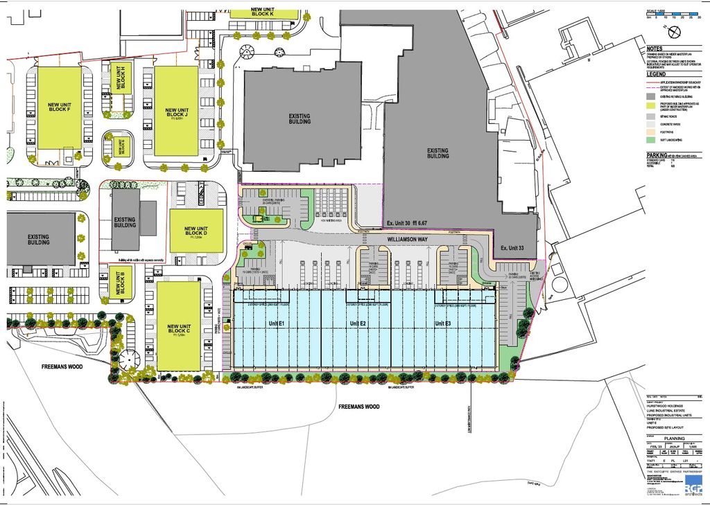
Block E consists of Design & Build opportunity from 30,000sqft to a stand alone, self contained distribution / manufacturing facility of 75,000sqft.
Lune Business Park is a major new 23-acre development by Hurstwood Holdings providing an opportunity for tenants to expand or relocate at this established park in the busy city of Lancaster. This mixed-use scheme, totaling 200,000 sq ft of new industrial space comprising 65 units, will provide high quality and refurbished units ranging in size from 1,000 sq ft –150,000 sq ft.
Location
Lune Business Park is located just a mile from the centre of Lancaster on New Quay Road, adjacent to the river Lune. It is within a short drive of junctions 33 and 34 of the M6 motorway. The A6 passes through Lancaster city centre leading southwards to Preston, Chorley and Manchester and northwards to Carnforth, Kendal, Penrith and Carlisle. The A683 link road, opened in recent years, has further improved access in the area. Lancaster is served by the West Coast Main Line at Lancaster railway station.
Specifications
Build to suit opportunity. Grade A newbuild Specification.
Block E consists of Design & Build opportunity from 30,000sqft to a stand alone, self contained distribution / manufacturing facility of 75,000sqft.
Lune Business Park is a major new 23-acre development by Hurstwood Holdings providing an opportunity for tenants to expand or relocate at this established park in the busy city of Lancaster. This mixed-use scheme, totaling 200,000 sq ft of new industrial space comprising 65 units, will provide high quality and refurbished units ranging in size from 1,000 sq ft –150,000 sq ft.
Location
Lune Business Park is located just a mile from the centre of Lancaster on New Quay Road, adjacent to the river Lune. It is within a short drive of junctions 33 and 34 of the M6 motorway. The A6 passes through Lancaster city centre leading southwards to Preston, Chorley and Manchester and northwards to Carnforth, Kendal, Penrith and Carlisle. The A683 link road, opened in recent years, has further improved access in the area. Lancaster is served by the West Coast Main Line at Lancaster railway station.
Specifications
Build to suit opportunity. Grade A newbuild Specification.



.png)