£18,000 pa
(£1,500 pcm)
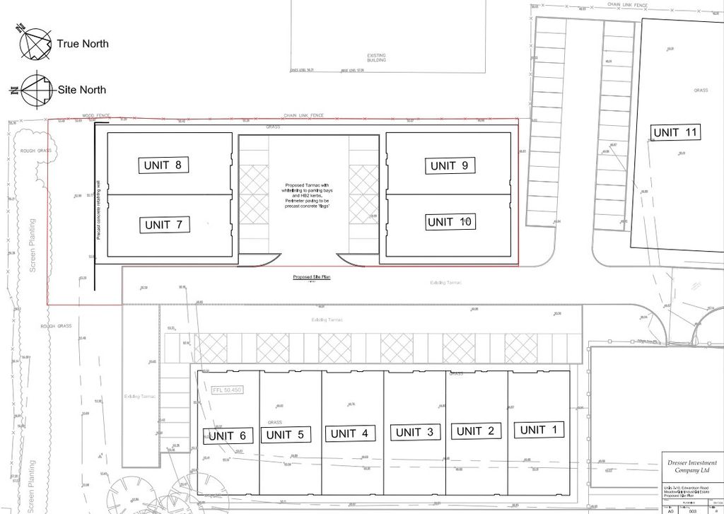
Light industrial to letMeadowfield Industrial Estate, Durham DH7
About this property
Brand New Units Available January
From 2,000 sqft
Energy efficient with proposed B EPC rating
Dedicated Parking
Available from January 2026
The subject property comprises of six corrugated steel units with an eave’s height of 6m rising to 7.3m at the apex. Each unit will contain a w/c and have an electric roller shutter. Security measures on site will consist of CCTV and an electric gate at the entrance. There is parking to the front of the units.
Accommodation
We calculate the approximate net/gross internal floor areas to be as follows:
Total 195.23 m2 2,101 ft2
EPC rating
Expecting B42
Rating assessment
The rateable value of the premises is to be assessed. Interested parties should confirm the current position with the Local Authority.
Terms
The property is available by way of a new lease with terms to be agreed.
VAT
All rents, premiums and purchase prices quoted herein are exclusive of VAT. All offers are to be made to Bradley Hall upon this basis, and where silent, offers will be deemed net of VAT.
Legal costs
Each party is to bear their own legal costs involved in the transaction.
Anti-money laundering regulations
In accordance with the Anti-Money Laundering Regulations we are required to verify the identify of the Purchaser/Tenant. We will do so based on name and address data provided but we may also require you to provide two forms of identification. We will require the Purchaser/Tenant to provide proof of the source of income.
Viewing
For general enquiries and viewing arrangements please contact Bradley Hall.
Tel: Email:
Accommodation
We calculate the approximate net/gross internal floor areas to be as follows:
Total 195.23 m2 2,101 ft2
EPC rating
Expecting B42
Rating assessment
The rateable value of the premises is to be assessed. Interested parties should confirm the current position with the Local Authority.
Terms
The property is available by way of a new lease with terms to be agreed.
VAT
All rents, premiums and purchase prices quoted herein are exclusive of VAT. All offers are to be made to Bradley Hall upon this basis, and where silent, offers will be deemed net of VAT.
Legal costs
Each party is to bear their own legal costs involved in the transaction.
Anti-money laundering regulations
In accordance with the Anti-Money Laundering Regulations we are required to verify the identify of the Purchaser/Tenant. We will do so based on name and address data provided but we may also require you to provide two forms of identification. We will require the Purchaser/Tenant to provide proof of the source of income.
Viewing
For general enquiries and viewing arrangements please contact Bradley Hall.
Tel: Email:



.png)