Non quoting
Office to letNewcombe House, Rosemount Estates, Elland HX5
3,401 sq. ft
Leasehold
About this property
Accessible Ground Floor Unit
3,401 Sq Ft (315.95 Sq M)
Suitable For A Variety Of Uses
Designated Parking
The property comprises a single storey stone built building situated on Rosemount Estate with access off Newcombe Street, Elland.
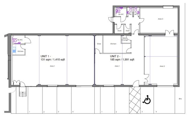
The property is well presented throughout and has the benefit of having a large hall, kitchen, seating area, two meeting rooms/offices, relevant WC facilities to include a separate disabled WC, baby change and ancillary stores. Heating is provided by way of gas central heating. Externally there are 8 parking bays which includes 1 disabled parking bay, with further parking available on the adjoining Rosemount Estate by agreement.
The property has planning permission for uses falling under Use Class E (c-g).
A scheme exists with an option for two roller shutters to be installed to the property and the potential to divide the property into two, creating a 1,410 sq ft unit and a 1,991 sq ft unit. Details to be agreed with any prospective tenant.
Rosemount Estate
Rosemount Estate is a secure well-regarded, privately owned and managed industrial estate and is home to a range of industrial, manufacturing and office tenants. The Estate is within walking distance of Elland town centre where a range of amenities are available. Please see for further information and details of other available properties.
Mains services connected to the premises include electricity, gas, water and drainage. Please note these services have not been tried or tested and any interested parties are advised to satisfy themselves as to suitability and condition.
The property is well presented throughout and has the benefit of having a large hall, kitchen, seating area, two meeting rooms/offices, relevant WC facilities to include a separate disabled WC, baby change and ancillary stores. Heating is provided by way of gas central heating. Externally there are 8 parking bays which includes 1 disabled parking bay, with further parking available on the adjoining Rosemount Estate by agreement.
The property has planning permission for uses falling under Use Class E (c-g).
A scheme exists with an option for two roller shutters to be installed to the property and the potential to divide the property into two, creating a 1,410 sq ft unit and a 1,991 sq ft unit. Details to be agreed with any prospective tenant.
Rosemount Estate
Rosemount Estate is a secure well-regarded, privately owned and managed industrial estate and is home to a range of industrial, manufacturing and office tenants. The Estate is within walking distance of Elland town centre where a range of amenities are available. Please see for further information and details of other available properties.
Mains services connected to the premises include electricity, gas, water and drainage. Please note these services have not been tried or tested and any interested parties are advised to satisfy themselves as to suitability and condition.



.png)