£16,000 pa
(£4.51/sq. ft. pa)
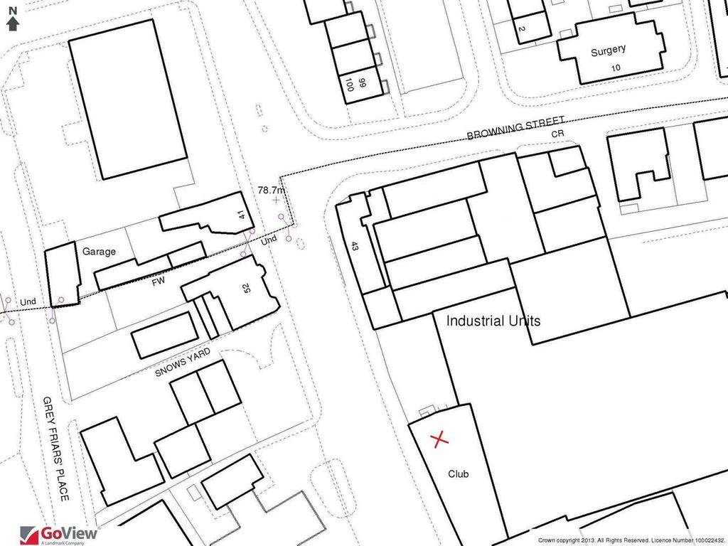
Office to letUnit 1A Paul Reynolds Centre, 42-44 Foregate Street, Stafford ST16
3,544 sq. ft
EPC Rating: C
About this property
Total NIA 3,544 sq. Ft.
Estimated Rates Payable: £6112.75
Description
An open plan first floor office located within The Paul Reynolds Centre on the A34 close to the town centre and forming part of a larger complex of mixed-use commercial units. Other occupiers include Fishworld, Bizarre Balloons, Anatolian Palace, Envy Hair and Beauty and Well Studio Digital.
The office is arranged over one floor and accessed from within the indoor car park via a staircase and shared lobby area. A separate modern fitted kitchen, gas-fired central heating, copious data cabling is installed, with separate male and female WC’s within the demise. There is also a small storage room and smaller separate office space.
The premises are located along the main road, facing Foregate Street and prominent to passing traffic.
Location
The Paul Reynolds Centre is situated in a prominent position on Foregate Street (A34), opposite Greyfriars and adjacent to Browning Street. Located on the periphery of Stafford town centre on the A34, it has good access from Junction 14 of the M6 motorway.
The Paul Reynolds Centre is a 10-minute walk to the town centre and 20-minute walk to Stafford Train Station. Close by business’ include Screwfix, Cartridge World, Halford’s and Lidl and access to the centre is via Browning Street with parking within the indoor car park.
Terms
The premises is available by way of a new lease for a term of years to be agreed. The tenant is responsible for all the internal repairs and maintenance and the landlord will be responsible for the external repairs and maintenance. Each party to pay for their own legal fees.
Services
Mains water and electricity are connected. Please note that no services have been tested by the agents.
VAT
The rent will be subject to VAT.
An open plan first floor office located within The Paul Reynolds Centre on the A34 close to the town centre and forming part of a larger complex of mixed-use commercial units. Other occupiers include Fishworld, Bizarre Balloons, Anatolian Palace, Envy Hair and Beauty and Well Studio Digital.
The office is arranged over one floor and accessed from within the indoor car park via a staircase and shared lobby area. A separate modern fitted kitchen, gas-fired central heating, copious data cabling is installed, with separate male and female WC’s within the demise. There is also a small storage room and smaller separate office space.
The premises are located along the main road, facing Foregate Street and prominent to passing traffic.
Location
The Paul Reynolds Centre is situated in a prominent position on Foregate Street (A34), opposite Greyfriars and adjacent to Browning Street. Located on the periphery of Stafford town centre on the A34, it has good access from Junction 14 of the M6 motorway.
The Paul Reynolds Centre is a 10-minute walk to the town centre and 20-minute walk to Stafford Train Station. Close by business’ include Screwfix, Cartridge World, Halford’s and Lidl and access to the centre is via Browning Street with parking within the indoor car park.
Terms
The premises is available by way of a new lease for a term of years to be agreed. The tenant is responsible for all the internal repairs and maintenance and the landlord will be responsible for the external repairs and maintenance. Each party to pay for their own legal fees.
Services
Mains water and electricity are connected. Please note that no services have been tested by the agents.
VAT
The rent will be subject to VAT.



.png)