£20,000 pa
(£27.32/sq. ft. pa)
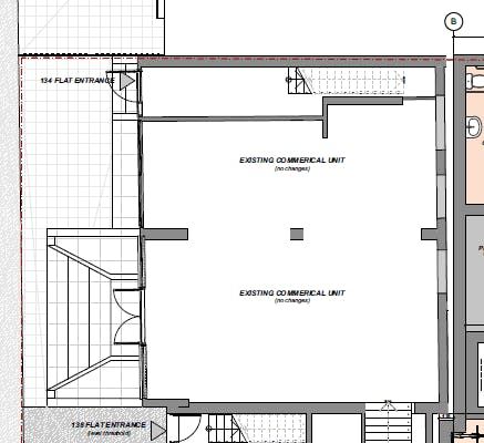
Retail premises to let134-138 Kingsley Park Terrace, 134 Kingsley Park Terrace, Northampton NN2
732 sq. ft
About this property
Will be fitted to a shell condition
Double frontage
Popular retail destination
Large residential and commercial catchment
Suitable for a variety of uses (subject to planning)
Description
The subject property will comprise a mid-terrace, ground-floor retail unit with a large glazed frontage. The property will be fitted out to a shell condition. It may be suitable for a variety of uses (subject to planning)
Location
The property is located on Kingsley Park Terrace, approximately one mile east of Northampton town centre and three miles east of junction 15 of the M1 motorway. The Kettering Road (A508) is the major arterial road linking Northampton and Kettering.
The area is characterised by a mixture of national and independent retailers. Local occupiers include Tesco Express, Pizza Hut, Betfred and a number of restaurants/pubs.
The subject property will comprise a mid-terrace, ground-floor retail unit with a large glazed frontage. The property will be fitted out to a shell condition. It may be suitable for a variety of uses (subject to planning)
Location
The property is located on Kingsley Park Terrace, approximately one mile east of Northampton town centre and three miles east of junction 15 of the M1 motorway. The Kettering Road (A508) is the major arterial road linking Northampton and Kettering.
The area is characterised by a mixture of national and independent retailers. Local occupiers include Tesco Express, Pizza Hut, Betfred and a number of restaurants/pubs.


.png)