From
£12,000 pa
(£12.00/sq. ft. pa)
Office to letStiltz Building, Ledson Road, Roundthorn Industrial Estate, Wythenshawe M23
From 1,000 - 6,929 sq. ft
About this property
Open Plan
Fitted Kitchen
Shower Facilities
25 Car Parking Spaces
Dda compliant
Perimeter trunking
Passenger lift
24hr CCTV & electric gates
Excellent transport links
Estimated Rates Payable: £42042
Description
Modern office space that offers self-contained ground floor entrance. The open plan layout fosters collaboration and flexibility, whilst the space also includes private offices with glazed portioning for added privacy. A separate boardroom with glazed portioning is available for meetings.
The office benefits from ceiling-mounted light fittings and perimeter trunking for efficient cable management. The office has a fully fitted kitchen along with WC and shower facilities. The entire site is under 24-hour CCTV surveillance and electric gates for added security. The office is fully dda-compliant. The property also includes 25 parking spaces.
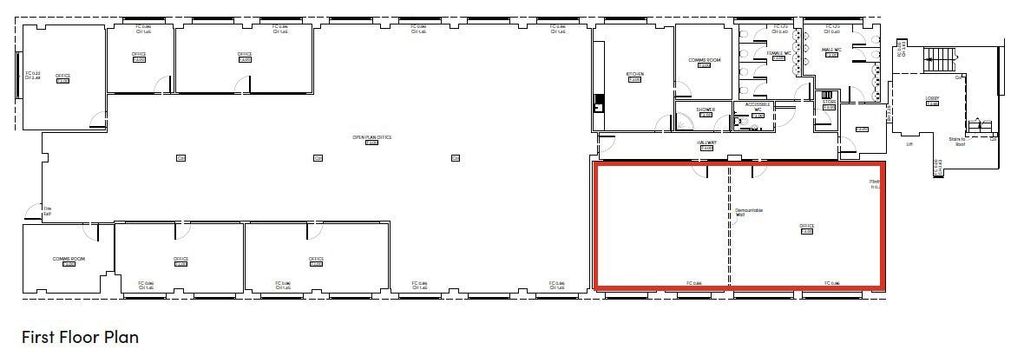
The accommodation has been measured on a Net Internal Area basis and is approx. 6,929 sq ft (643.73 sq m) and can be subdivided to provide a number of self-contained fully fitted office suites from 1,000 sq ft upwards, subject to the final agreed specification.
Location
The Stiltz Building is located on Ledson Road, close to the junction of Southmoor Road in Roundthorn. The surrounding area is a mix of office and warehouse properties. The office benefits from excellent transport links, Junction 3 of the M56 is approximately 2 miles from the property and Junction 5 of the M60,3 miles away. Manchester Airport is also within 4 miles of the office and Roundthorn Train Station is 0.2 miles away.
In addition, Roundthorn Metrolink Station is in the conveniently close by, offering regular services to Manchester City Centre, neighbouring towns and the Airport. The property is within walking distance of various amenities including Greggs, jd Sports Gym & Tesco Extra.
Terms
The accommodation is available to let on terms to be agreed.
Modern office space that offers self-contained ground floor entrance. The open plan layout fosters collaboration and flexibility, whilst the space also includes private offices with glazed portioning for added privacy. A separate boardroom with glazed portioning is available for meetings.
The office benefits from ceiling-mounted light fittings and perimeter trunking for efficient cable management. The office has a fully fitted kitchen along with WC and shower facilities. The entire site is under 24-hour CCTV surveillance and electric gates for added security. The office is fully dda-compliant. The property also includes 25 parking spaces.
The accommodation has been measured on a Net Internal Area basis and is approx. 6,929 sq ft (643.73 sq m) and can be subdivided to provide a number of self-contained fully fitted office suites from 1,000 sq ft upwards, subject to the final agreed specification.
Location
The Stiltz Building is located on Ledson Road, close to the junction of Southmoor Road in Roundthorn. The surrounding area is a mix of office and warehouse properties. The office benefits from excellent transport links, Junction 3 of the M56 is approximately 2 miles from the property and Junction 5 of the M60,3 miles away. Manchester Airport is also within 4 miles of the office and Roundthorn Train Station is 0.2 miles away.
In addition, Roundthorn Metrolink Station is in the conveniently close by, offering regular services to Manchester City Centre, neighbouring towns and the Airport. The property is within walking distance of various amenities including Greggs, jd Sports Gym & Tesco Extra.
Terms
The accommodation is available to let on terms to be agreed.



.png)