£30,000 pa
(£2,500 pcm)
Warehouse to letCrown Trading Centre, Hayes, Hayes UB3
1 bath
Available immediately
About this property
Easy travel
Close to town centre
Electric Roller Shutters
Key Features:
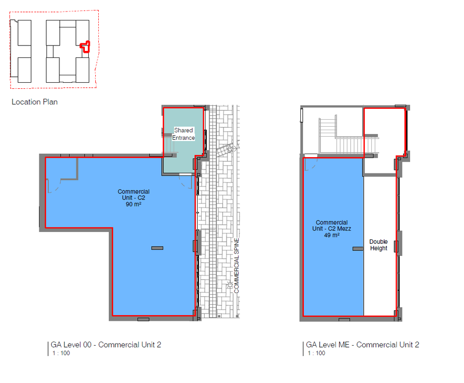
Size: Approx. 139sqm (1,496 sqft)
Flexible Use Class – Suitable for most retail and commercial purposes
Water Connection
Excellent Location – Moments from Hayes Town Centre
Strong Transport Links – Close to M4/M25 and Hayes & Harlington Station
Electricity - 3 phase electric - 120 amp
Parking – 1 Allocated parking spaces on-site for the incoming tenant
Location:
Crown Trading Centre is ideally situated on Clayton Road in Hayes, in the heart of a busy commercial and industrial hub. The location offers excellent connectivity, with close proximity to the A312, M4, and M25, providing direct routes to Central London, Heathrow Airport, and surrounding areas.
The area is well-served by public transport, with Hayes & Harlington Station just a short drive away, offering access to the Elizabeth Line (Crossrail) for fast links to the West End and Canary Wharf.
Surrounded by a mix of light industrial units, retail outlets, and growing residential developments, this location sees strong daily traffic from both businesses and local resident commercial uses.
Suitable Use:
Shops – clothing, electronics, convenience stores, supermarkets, etc.
Cafés and Restaurants – for eat-in or takeaway (subject to licensing).
Showrooms – e.g. Furniture/kitchen showrooms.
Barbershops / Hair & Beauty Salons.
Private Fitness Studios
Offices – for professional services e.g. - estate agents, solicitors
Clinics / Medical Use – dentists, physiotherapists, or health practitioners.
Workshops or Studios – such as art, photography, tailoring, or crafts.
Financial & Professional Services – banks, travel agents, etc.
Educational or Training Centres – tutoring, small classrooms, etc.
High Footfall & Residential Growth :
Located within a densely populated residential area with a number of new-build developments, local high schools, and community facilities nearby, this unit offers excellent visibility and steady local traffic.
A new cinema development underway in the vicinity will further enhance visitor numbers and commercial appeal. This is an outstanding opportunity for growing businesses looking for a high-potential, flexible retail unit in a thriving area
Size: Approx. 139sqm (1,496 sqft)
Flexible Use Class – Suitable for most retail and commercial purposes
Water Connection
Excellent Location – Moments from Hayes Town Centre
Strong Transport Links – Close to M4/M25 and Hayes & Harlington Station
Electricity - 3 phase electric - 120 amp
Parking – 1 Allocated parking spaces on-site for the incoming tenant
Location:
Crown Trading Centre is ideally situated on Clayton Road in Hayes, in the heart of a busy commercial and industrial hub. The location offers excellent connectivity, with close proximity to the A312, M4, and M25, providing direct routes to Central London, Heathrow Airport, and surrounding areas.
The area is well-served by public transport, with Hayes & Harlington Station just a short drive away, offering access to the Elizabeth Line (Crossrail) for fast links to the West End and Canary Wharf.
Surrounded by a mix of light industrial units, retail outlets, and growing residential developments, this location sees strong daily traffic from both businesses and local resident commercial uses.
Suitable Use:
Shops – clothing, electronics, convenience stores, supermarkets, etc.
Cafés and Restaurants – for eat-in or takeaway (subject to licensing).
Showrooms – e.g. Furniture/kitchen showrooms.
Barbershops / Hair & Beauty Salons.
Private Fitness Studios
Offices – for professional services e.g. - estate agents, solicitors
Clinics / Medical Use – dentists, physiotherapists, or health practitioners.
Workshops or Studios – such as art, photography, tailoring, or crafts.
Financial & Professional Services – banks, travel agents, etc.
Educational or Training Centres – tutoring, small classrooms, etc.
High Footfall & Residential Growth :
Located within a densely populated residential area with a number of new-build developments, local high schools, and community facilities nearby, this unit offers excellent visibility and steady local traffic.
A new cinema development underway in the vicinity will further enhance visitor numbers and commercial appeal. This is an outstanding opportunity for growing businesses looking for a high-potential, flexible retail unit in a thriving area



.png)