£18,300 pa
(£1,525 pcm)
Business park to letBishop Auckland, Bishop Auckland DL14
About this property
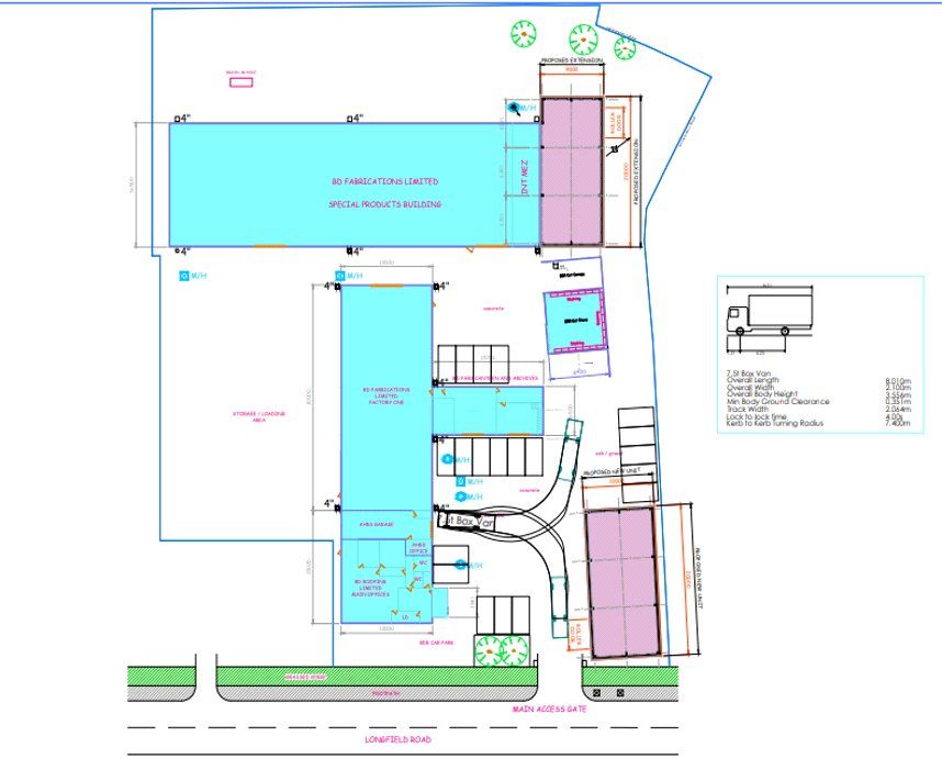
Steel roller shutter and personnel doors.
Profiled sheet cladding to match existing .
Good visibility and access from the roadside
Adequate vehicle turning circle within the yard.
Secure gated entrance to the site
Location
The site is located within the South Church Enterprise Park, off Longfield Road, near the town of Bishop Auckland in County Durham.
It benefits from a prominent industrial-/business-park setting, with numerous commercial units and businesses registered in the vicinity.
The location offers good access to local roads and is positioned for visibility from the estate’s main circulation routes; the enterprise park also provides ample yard space and infrastructure suited for industrial/commercial use.
Description
The following details are submitted in support of planning application DM/24/00628/fpa. The proposal seeks permission for the erection of a new detached building positioned at the front section of the site. The structure will incorporate a mono-pitch roof with eaves measuring approximately 4.3 meters, rising to a maximum height of 5.5 meters, ensuring an efficient internal working height while maintaining a modest external profile that limits visual impact.
Access will be provided via personnel doors positioned on the north and west elevations, together with a steel roller shutter door on the west elevation, offering practical access for vehicles and operational equipment.
Externally, the building will be finished in profiled metal cladding to match the existing units on the site in both colour and appearance, ensuring consistency and visual continuity across the development. The layout allows for safe access and maneuvering, with sufficient yard space located directly to the front of the unit.
Use class
B8 - Storage or distribution.
EPC Rating
To be assessed upon completion.
Terms
The property is available by way of a new lease to let at £8.50psf.
VAT
All figures quoted are exclusive of VAT and payable where applicable
Legal costs
Each party to be responsible for their own legal costs incurred in this transaction.
Rating
Please make your own enquiries with the Local Rating Authority.
Viewing
Please contact this office for a convenient appointment to view or for further information regarding the premises
joseph i’anson
The site is located within the South Church Enterprise Park, off Longfield Road, near the town of Bishop Auckland in County Durham.
It benefits from a prominent industrial-/business-park setting, with numerous commercial units and businesses registered in the vicinity.
The location offers good access to local roads and is positioned for visibility from the estate’s main circulation routes; the enterprise park also provides ample yard space and infrastructure suited for industrial/commercial use.
Description
The following details are submitted in support of planning application DM/24/00628/fpa. The proposal seeks permission for the erection of a new detached building positioned at the front section of the site. The structure will incorporate a mono-pitch roof with eaves measuring approximately 4.3 meters, rising to a maximum height of 5.5 meters, ensuring an efficient internal working height while maintaining a modest external profile that limits visual impact.
Access will be provided via personnel doors positioned on the north and west elevations, together with a steel roller shutter door on the west elevation, offering practical access for vehicles and operational equipment.
Externally, the building will be finished in profiled metal cladding to match the existing units on the site in both colour and appearance, ensuring consistency and visual continuity across the development. The layout allows for safe access and maneuvering, with sufficient yard space located directly to the front of the unit.
Use class
B8 - Storage or distribution.
EPC Rating
To be assessed upon completion.
Terms
The property is available by way of a new lease to let at £8.50psf.
VAT
All figures quoted are exclusive of VAT and payable where applicable
Legal costs
Each party to be responsible for their own legal costs incurred in this transaction.
Rating
Please make your own enquiries with the Local Rating Authority.
Viewing
Please contact this office for a convenient appointment to view or for further information regarding the premises
joseph i’anson



.png)