Non quoting
Retail premises to letStafford Road, Wolverhampton WV10
From 1,245 - 1,649 sq. ft
About this property
The property forms a single-storey former convenience store with parking. The property will be subdivided to provide 3 new retail units facing the car park with new shop fronts and capped off services to an agreed specification. Internally the units will be to a developer’s shell finish.
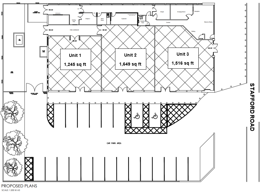
The site will have 22 shared parking spaces with 6 potentially being reserved for EV Charging.
Unit 1 115.7 m2 1,245 sq ft
Unit 2 153.2 m2 1,649 sq ft
Unit 3 140.8 m2 1,516 sq ft - under offer
Floor plans in PDF/ dwg format are available upon application.
The site will have 22 shared parking spaces with 6 potentially being reserved for EV Charging.
Unit 1 115.7 m2 1,245 sq ft
Unit 2 153.2 m2 1,649 sq ft
Unit 3 140.8 m2 1,516 sq ft - under offer
Floor plans in PDF/ dwg format are available upon application.


.png)