From
£40,000 pa
(£13.12/sq. ft. pa)
Light industrial to letLodge Way, Indian Queens TR9
From 3,048 - 3,074 sq. ft
About this property
Last Unit Remaining
Modern Industrial/Warehouse Units
3,048 Sq Ft - 3,074 Sq Ft (283.2 Sq M - 285.6 Sq M) gia
Class E Use Class*
Generous Parking Provision
Popular Estate Location next to A30 Intersection
Delivery Summer 2026
Last Unit Remaining
Four of the five units are firmly under offer and progressing legally.
Location
The A30 Business Park is strategically located just off the Indian Queens intersection which provides excellent connectivity to the rest of the county and M5 beyond. The business park forms part of the larger Indian Queens Industrial Estate and is an established location.
Current occupiers include; Hawkins Motors flagship Kia dealership, DaBara Bakery, Amped Bikes, Ellis Wharton Wines, Macron, Screwfix, Kitchen Kit etc.
Description
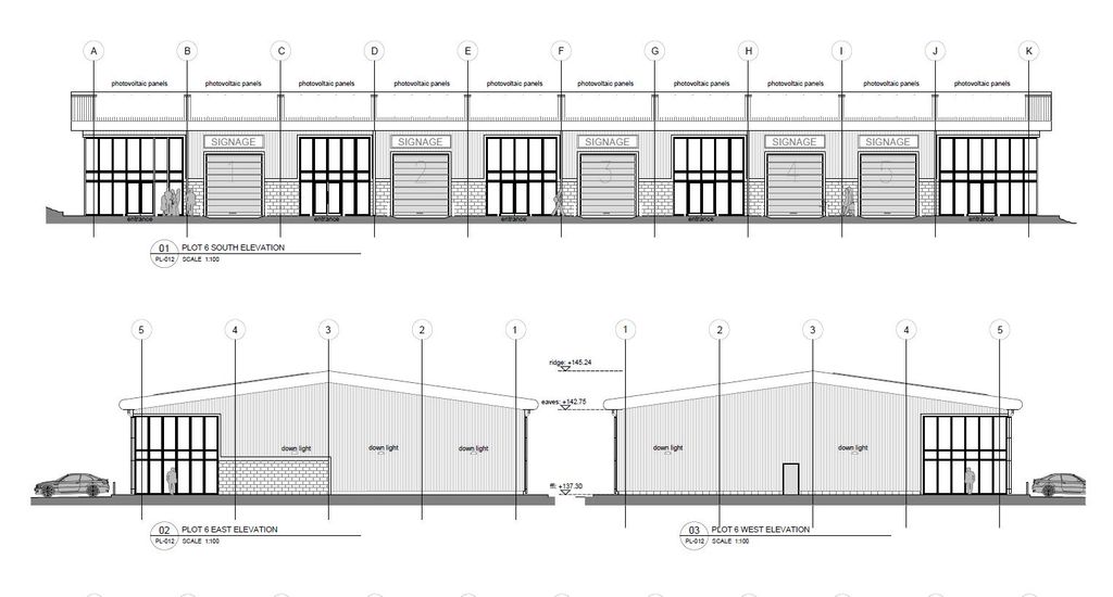
The scheme consists of five industrial/warehouse units, designed and built to a high-quality, sustainable standard. Each unit features a steel frame with a combination of profile cladding and blockwork on the external walls, beneath a profiled roof incorporating 10% roof lights and roof-mounted solar panels. The units are delivered as shells, allowing tenants to complete the internal fit-out according to their individual needs. The front elevation includes a double-glazed entrance door and generous glazing, creating a bright and welcoming frontage. Externally, the development provides a shared access and forecourt area, with dedicated parking spaces allocated to each unit.
Planning permission for the erection of 5 industrial/warehouse units was granted under PA24/08989. With the changes to the Use Class Order the development falls within class E which covers a wide range of industrial, business and leisure uses, but excludes the E(a) and E(b) (retail and restaurant) uses, without the need for planning permission.
Accommodation
All stated areas are approximate and measured from the plans in accordance with the RICS Code
of Measuring Practice. The units comprise the following approximate Gross Internal Areas:
Unit 1 - 3,074 Sq Ft (285.6 Sq M)
Unit 2 - 3,048 Sq Ft (283.2 Sq M)
Unit 3 - 3,048 Sq Ft (283.2 Sq M)
Unit 4 - 3,048 Sq Ft (283.2 Sq M)
Unit 5 - 3,074 Sq Ft (285.6 Sq M)
Tenure
For a term by arrangement on Full Repairing Terms inclusive of service charge.
Covenant Status
A deposit or other security may be required subject to covenant status.
Buildings Insurance
The Landlord to insure and recover from the Tenant.
Service Charge
The Landlord to insure and recover from the Tenant.
Business Rates
The rateable value will be assessed for rating purposes following completion of the letting. For
further information interested parties are advised to contact the Valuation Office Agency.
Legal Costs
Each party to bear their own costs.
VAT
The units are to be elected for VAT.
EPC
EPCs will be available upon the completion of the units and once the building regulation certificate has been issued.
Agents Notes
Hewitt Land and Commercial, acting for themselves and for the vendor(s) or lessor(s) of this property, hereby give notice that:
These particulars are provided for the guidance of intending purchasers or tenants. While they are believed to be correct, their accuracy cannot be guaranteed. Any errors, omissions, or misdescriptions shall not invalidate the sale or letting, nor give rise to any claim for compensation, and these particulars do not form part of any contract.
No responsibility is accepted for any costs or expenses incurred by prospective purchasers or tenants in the event that the property is sold, let, or withdrawn from the market prior to inspection.
None of the services or appliances, including plumbing, heating, or electrical installations, have been tested by the selling agent.
Wide angle photography may have been used.
Any plans referenced are for identification purposes only.
Aml
Anti-Money Laundering (aml) Requirements
In accordance with the Money Laundering, Terrorist Financing and Transfer of Funds (Information on the Payer) Regulations 2017, Hewitt Land and Commercial is required to carry out identity and aml/Sanctions checks on all prospective tenants and purchasers.
Fees may apply for these checks.
Four of the five units are firmly under offer and progressing legally.
Location
The A30 Business Park is strategically located just off the Indian Queens intersection which provides excellent connectivity to the rest of the county and M5 beyond. The business park forms part of the larger Indian Queens Industrial Estate and is an established location.
Current occupiers include; Hawkins Motors flagship Kia dealership, DaBara Bakery, Amped Bikes, Ellis Wharton Wines, Macron, Screwfix, Kitchen Kit etc.
Description
The scheme consists of five industrial/warehouse units, designed and built to a high-quality, sustainable standard. Each unit features a steel frame with a combination of profile cladding and blockwork on the external walls, beneath a profiled roof incorporating 10% roof lights and roof-mounted solar panels. The units are delivered as shells, allowing tenants to complete the internal fit-out according to their individual needs. The front elevation includes a double-glazed entrance door and generous glazing, creating a bright and welcoming frontage. Externally, the development provides a shared access and forecourt area, with dedicated parking spaces allocated to each unit.
Planning permission for the erection of 5 industrial/warehouse units was granted under PA24/08989. With the changes to the Use Class Order the development falls within class E which covers a wide range of industrial, business and leisure uses, but excludes the E(a) and E(b) (retail and restaurant) uses, without the need for planning permission.
Accommodation
All stated areas are approximate and measured from the plans in accordance with the RICS Code
of Measuring Practice. The units comprise the following approximate Gross Internal Areas:
Unit 1 - 3,074 Sq Ft (285.6 Sq M)
Unit 2 - 3,048 Sq Ft (283.2 Sq M)
Unit 3 - 3,048 Sq Ft (283.2 Sq M)
Unit 4 - 3,048 Sq Ft (283.2 Sq M)
Unit 5 - 3,074 Sq Ft (285.6 Sq M)
Tenure
For a term by arrangement on Full Repairing Terms inclusive of service charge.
Covenant Status
A deposit or other security may be required subject to covenant status.
Buildings Insurance
The Landlord to insure and recover from the Tenant.
Service Charge
The Landlord to insure and recover from the Tenant.
Business Rates
The rateable value will be assessed for rating purposes following completion of the letting. For
further information interested parties are advised to contact the Valuation Office Agency.
Legal Costs
Each party to bear their own costs.
VAT
The units are to be elected for VAT.
EPC
EPCs will be available upon the completion of the units and once the building regulation certificate has been issued.
Agents Notes
Hewitt Land and Commercial, acting for themselves and for the vendor(s) or lessor(s) of this property, hereby give notice that:
These particulars are provided for the guidance of intending purchasers or tenants. While they are believed to be correct, their accuracy cannot be guaranteed. Any errors, omissions, or misdescriptions shall not invalidate the sale or letting, nor give rise to any claim for compensation, and these particulars do not form part of any contract.
No responsibility is accepted for any costs or expenses incurred by prospective purchasers or tenants in the event that the property is sold, let, or withdrawn from the market prior to inspection.
None of the services or appliances, including plumbing, heating, or electrical installations, have been tested by the selling agent.
Wide angle photography may have been used.
Any plans referenced are for identification purposes only.
Aml
Anti-Money Laundering (aml) Requirements
In accordance with the Money Laundering, Terrorist Financing and Transfer of Funds (Information on the Payer) Regulations 2017, Hewitt Land and Commercial is required to carry out identity and aml/Sanctions checks on all prospective tenants and purchasers.
Fees may apply for these checks.



.png)