£38,000 pa
(£3,167 pcm)
Business park to letOld Grain Store, Wagonway Road, Alnwick, Northumberland NE66
About this property
Landlord Inducements Available
Industrial Storage Unit
Close Proximity to A1 & Alnwick Town Centre
Total Size of 584m2 / 6,287 ft2
3 Floors of Storage Space
Security access shutter door
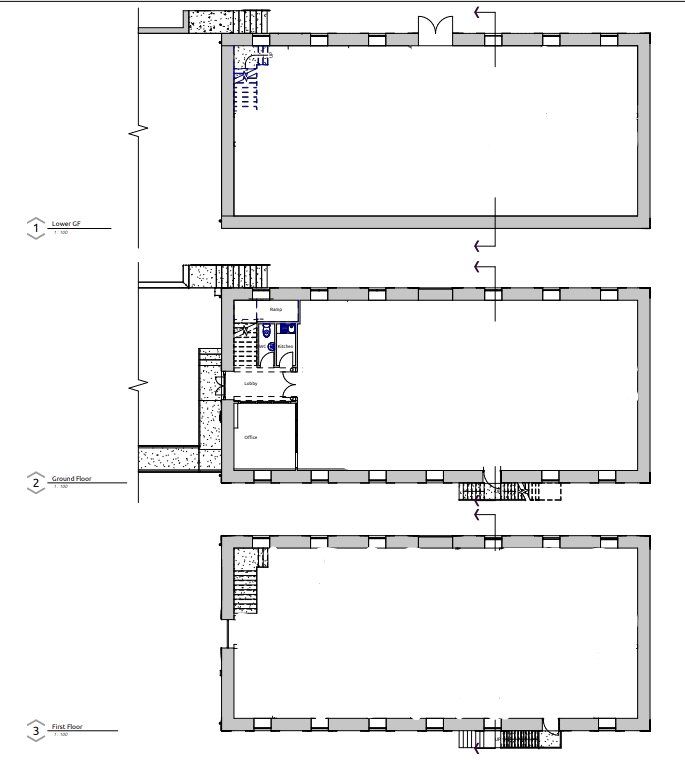
Description: The property comprises a 3-storey storage unit of stone construction with a pitched tile roof, steel floor to ceiling beams, a security access shutter door,
W/c’s and a small timber goods door to the side. The ground floor has a minimum eaves height of 2.11m and a maximum eaves of 2.33m. The first floor has a minimum eaves of 1.95m and a maximum of eaves of 5.08. The lower ground floor has a minimum eaves of 2.17 and a maximum eaves of 2.41
location: Alnwick is a popular market town in Northumberland in the north-east of England situated 17.5 miles north of Morpeth and 4 miles west of Alnmouth. The unit is located on Wagon Way road, near the town centre of Alnwick, just before Bondgate Without, 0.8 miles off the A1. A small trading estate is located next to the unit with surrounding occupiers including Barter Books, jrc motors, Jewsons as well as Lidl and Alnwick Infirmary across the road on Infirmary Drive.
Accomodation:
We calculate the approximate gross internal area to be as follows:
Lower Ground Floor: 189.99 m2 / 2,045.12 ft2,
Ground Floor: 192.29 m2 / 2,069.89 ft2,
First Floor: 201.82 m2 / 2,172.46 ft2,
Total: 584m2 / 6,287 ft2
terms: Rent on Application
EPC rating: D-81
W/c’s and a small timber goods door to the side. The ground floor has a minimum eaves height of 2.11m and a maximum eaves of 2.33m. The first floor has a minimum eaves of 1.95m and a maximum of eaves of 5.08. The lower ground floor has a minimum eaves of 2.17 and a maximum eaves of 2.41
location: Alnwick is a popular market town in Northumberland in the north-east of England situated 17.5 miles north of Morpeth and 4 miles west of Alnmouth. The unit is located on Wagon Way road, near the town centre of Alnwick, just before Bondgate Without, 0.8 miles off the A1. A small trading estate is located next to the unit with surrounding occupiers including Barter Books, jrc motors, Jewsons as well as Lidl and Alnwick Infirmary across the road on Infirmary Drive.
Accomodation:
We calculate the approximate gross internal area to be as follows:
Lower Ground Floor: 189.99 m2 / 2,045.12 ft2,
Ground Floor: 192.29 m2 / 2,069.89 ft2,
First Floor: 201.82 m2 / 2,172.46 ft2,
Total: 584m2 / 6,287 ft2
terms: Rent on Application
EPC rating: D-81



.png)