From
£10,220 pa
(£10.00/sq. ft. pa)
Industrial to letNew Build Units - Lowther Road, Clay Flatts, Workington, Cumbria CA14
From 1,022 - 1,076 sq. ft
About this property
Steel portal frame construction
Highly insulated cladding and roof coverings
Electrically operated insulated roller shutter door
3 phase electric power supply as well as mains water and drainage connected
Concrete slab floor
Parking spaces to the front of each unit
Handed over ready for internal fit-out to be completed by the ingoing tenant
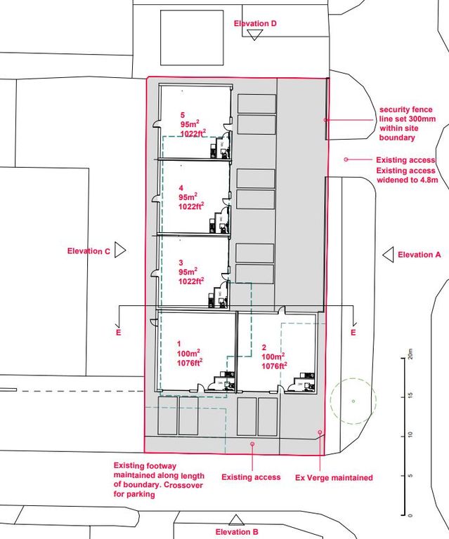
A proposed new build scheme of up to 5no. High-quality terraced light industrial business units, benefitting from:
- Steel Portal Frame Construction
- Highly Insulated Cladding and Roof Coverings
- Electrotonic operated insulated roller shutter door
- 3 phase electric power supply as well as mains water and drainage connected
- Concrete slab floor
- Parking spaces to the front of each unit
- Handed over ready for internal fit-out to be completed by the ingoing tenant
The units are available from 1,022 sq ft - 1,076 sq ft per unit, though consideration could be given to different sizes, and an amalgamation of units, including a single letting of the whole built space to one operator, subject to requirements and terms.
Location
Workington positioned within the west of Cumbria, has a resident population of approximately 25,000. The town of Whitehaven lies to the south, as well as The Sellafield Facility which is the largest employer for West Cumbria currently.
Carlisle, and the M6 motorway at Junction 44, are approximately 33 miles northeast, and Junction 40 of the M6 motorway is approximately 40 miles
east at Penrith.
The proposed commercial units are positioned within the long-established Clay Flatts Industrial Estate, approximately 1 mile west of Workington town
centre, and close to many major national trade counter, retail showroom and industrial operators. The proposed redevelopment is situated on
Lowther Road. The site sits opposite Travis Perkins, tms Motor Spares and lies just along the road from Booker Cash & Carry.
Accommodation
This property has been measured on a Gross Internal Area basis and extends to the following approximate areas:
Terms
The units are available to let on a new lease for a minimum term of 7 years at a rent in the order of £10 per sq ft.
Services
3 phase electric power supply as well as mains water and drainage connected
Business Rates
Subject to formal voa assessment, the units may qualify for small business rates relief.
VAT
No VAT is payable on the rent.
- Steel Portal Frame Construction
- Highly Insulated Cladding and Roof Coverings
- Electrotonic operated insulated roller shutter door
- 3 phase electric power supply as well as mains water and drainage connected
- Concrete slab floor
- Parking spaces to the front of each unit
- Handed over ready for internal fit-out to be completed by the ingoing tenant
The units are available from 1,022 sq ft - 1,076 sq ft per unit, though consideration could be given to different sizes, and an amalgamation of units, including a single letting of the whole built space to one operator, subject to requirements and terms.
Location
Workington positioned within the west of Cumbria, has a resident population of approximately 25,000. The town of Whitehaven lies to the south, as well as The Sellafield Facility which is the largest employer for West Cumbria currently.
Carlisle, and the M6 motorway at Junction 44, are approximately 33 miles northeast, and Junction 40 of the M6 motorway is approximately 40 miles
east at Penrith.
The proposed commercial units are positioned within the long-established Clay Flatts Industrial Estate, approximately 1 mile west of Workington town
centre, and close to many major national trade counter, retail showroom and industrial operators. The proposed redevelopment is situated on
Lowther Road. The site sits opposite Travis Perkins, tms Motor Spares and lies just along the road from Booker Cash & Carry.
Accommodation
This property has been measured on a Gross Internal Area basis and extends to the following approximate areas:
Terms
The units are available to let on a new lease for a minimum term of 7 years at a rent in the order of £10 per sq ft.
Services
3 phase electric power supply as well as mains water and drainage connected
Business Rates
Subject to formal voa assessment, the units may qualify for small business rates relief.
VAT
No VAT is payable on the rent.


.png)