Non quoting
Retail premises to let17 George Place, Bathgate EH48
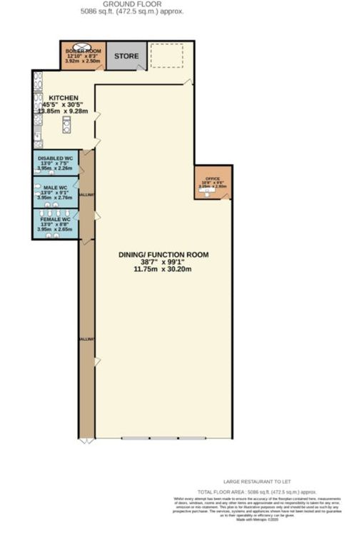
5,044 sq. ft
About this property
Former restaurant in town centre location
Landlord may be willing to carry out refurbishment works prior to new tenant entry
Flexible premises suitable for sub-division, dependent on requirement
469 sq m (5044 sq ft)
Offers over £250,000 (exc. Of VAT)
Rent on application
Description
The subjects comprise a stone-built property surmounted by a pitched roof. The subjects benefit from a large, glazed frontage secured by roller shutters. Access is afforded through a recessed entrance and internally, the subjects are presently laid out to provide restaurant accommodation with a spacious open dining/function room, office, kitchen, male, female and disabled WC facilities, and storage.
Location
Bathgate is a commuter town in West Lothian, approximately 20 miles west of Edinburgh. It holds a population of approximately 21,000 people with excellent communication links via road and rail across the central belt. The subjects are situated on the southern side of George Street in Bathgate, benefitting from a prominent town centre location with high passing footfall and traffic
The subjects comprise a stone-built property surmounted by a pitched roof. The subjects benefit from a large, glazed frontage secured by roller shutters. Access is afforded through a recessed entrance and internally, the subjects are presently laid out to provide restaurant accommodation with a spacious open dining/function room, office, kitchen, male, female and disabled WC facilities, and storage.
Location
Bathgate is a commuter town in West Lothian, approximately 20 miles west of Edinburgh. It holds a population of approximately 21,000 people with excellent communication links via road and rail across the central belt. The subjects are situated on the southern side of George Street in Bathgate, benefitting from a prominent town centre location with high passing footfall and traffic



.png)