£16,810 pa
(£8.75/sq. ft. pa)
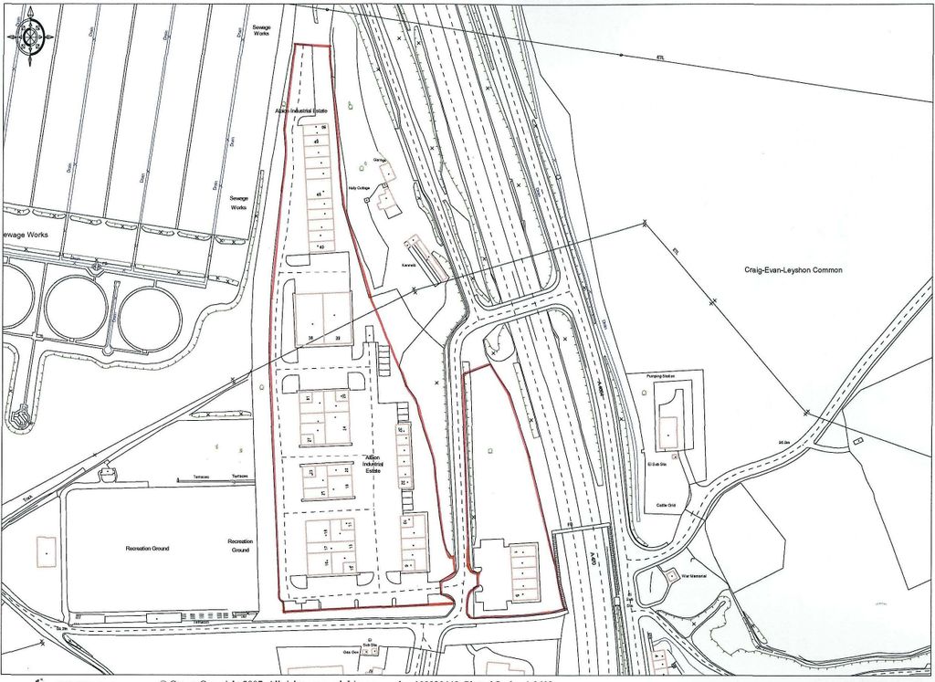
Industrial to letUnit 40 And 41, Albion Industrial Estate, Cilfynydd, Pontypridd CF37
1,921 sq. ft
EPC Rating: B
About this property
Established / vibrant industrial estate
Close proximity to A470 dual carriageway
LED lighting
Forecourt parking / loading area
Close proximity to A470 dual carriageway
Estimated Rates Payable: £8662
Description
Albion Industrial Estate is a popular commercial location situated adjacent to the A470.
These units comprise of a steel portal frame construction with part brick/blockwork, part metal clad elevations under a pitched roof.
With open plan workshop / warehouse accommodation, roller shutter door, LED lighting and dedicated parking with additional communal parking.
Units 40 & 41 are modern mid-terraced light industrial / warehouse unit of steel frame construction.
Location
Albion Industrial Estate is one of the established industrial estates in the lower Cynon Valley areas.
The estate is situated approximately 2.5 miles north of Pontypridd. The estate is accessed via the A4054 (Merthyr Road).
Junction 32 of the M4 motorway is approximately 12 miles to the south, accessed via the A470 dual carriageway.
Viewings
Contact Jenkins Best
Terms
The unit is available on new Full Repairing and Insuring Lease for a term to be agreed.
Specifications
Roller shutter door 3m wide and 3.3 m high
Minimum eaves height 3.5m. Maximum eaves height 4.5m
Single Pedestrian door
WC's
3 phase electricity and water.
Forecourt parking / loading and additional communal parking available
What3Words
///crunchy.surprises.landscape
Albion Industrial Estate is a popular commercial location situated adjacent to the A470.
These units comprise of a steel portal frame construction with part brick/blockwork, part metal clad elevations under a pitched roof.
With open plan workshop / warehouse accommodation, roller shutter door, LED lighting and dedicated parking with additional communal parking.
Units 40 & 41 are modern mid-terraced light industrial / warehouse unit of steel frame construction.
Location
Albion Industrial Estate is one of the established industrial estates in the lower Cynon Valley areas.
The estate is situated approximately 2.5 miles north of Pontypridd. The estate is accessed via the A4054 (Merthyr Road).
Junction 32 of the M4 motorway is approximately 12 miles to the south, accessed via the A470 dual carriageway.
Viewings
Contact Jenkins Best
Terms
The unit is available on new Full Repairing and Insuring Lease for a term to be agreed.
Specifications
Roller shutter door 3m wide and 3.3 m high
Minimum eaves height 3.5m. Maximum eaves height 4.5m
Single Pedestrian door
WC's
3 phase electricity and water.
Forecourt parking / loading and additional communal parking available
What3Words
///crunchy.surprises.landscape



.png)