£89,950 pa
(£10.88/sq. ft. pa)
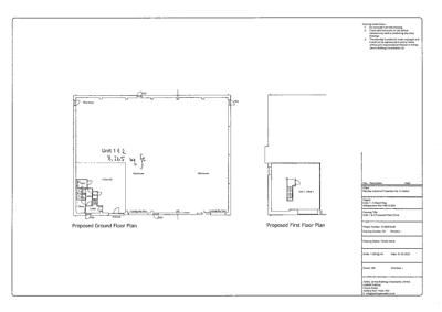
Industrial to let1-2 Heard Way, Eurolink, Sittingbourne, Kent ME10
8,265 sq. ft
Available immediately
About this property
Self-Contained Detached Industrial/Warehouse Unit
To be comprehensively refurbished
Two roller shutter doors
Eaves height 5.6m
First floor office
WC
Allocation parking
To let
Self-contained detached industrial/warehouse unit of steel portal framed construction. Salient features as follows:-
* To be comprehensively refurbished
* Ground floor warehouse
* Two roller shutter doors
* Eaves height 5.6m
* First floor office
* WC
* Allocated parking
* To be comprehensively refurbished
* Ground floor warehouse
* Two roller shutter doors
* Eaves height 5.6m
* First floor office
* WC
* Allocated parking



.png)