£5,700 pa
(£25.34/sq. ft. pa)
Office to letHibernia Road, Hounslow TW3
193 sq. ft
About this property
An outstanding opportunity to acquire a brand new Class E commercial (1,600 sq ft), thoughtfully arranged to support a wide range of professional and medical uses including Dental surgery, Chiropractic practice, Physiotherapy, sports massage, and other healthcare or wellness services.
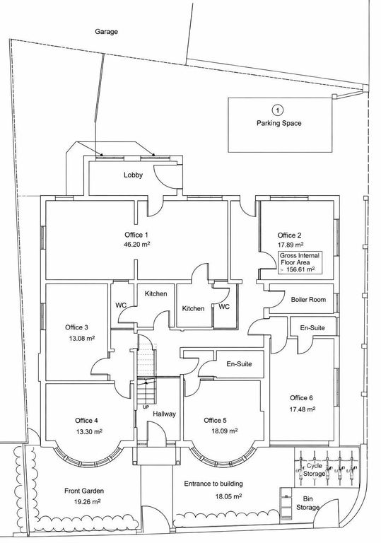
The property is configured into six separate offices/clinical rooms, including a large principal space of approximately 46.20sq m, complemented by additional rooms ranging from circa 13sq m to 18sq m, making it ideal for multi-practitioner occupancy or a combination of consultation and treatment rooms.
The layout benefits from a welcoming central lobby and hallway, multiple WCs and en-suite facilities, two kitchen areas, and a dedicated boiler room, providing excellent operational functionality for medical or professional occupiers.
Externally, the property further benefits from-
• Parking for two cars
• Secure, covered cycle storage for up to five bicycles
• Dedicated bin and recycling storage
Finished to a modern standard, this versatile Class E unit offers bright, well-proportioned accommodation with excellent flexibility for bespoke fit-out, making it an attractive proposition for occupiers alike.
This property is currently under refurbishment and should be available end of Feb 2026. Early viewing is highly recommended to appreciate the potential and adaptability this newly built commercial space has to offer.
The property is configured into six separate offices/clinical rooms, including a large principal space of approximately 46.20sq m, complemented by additional rooms ranging from circa 13sq m to 18sq m, making it ideal for multi-practitioner occupancy or a combination of consultation and treatment rooms.
The layout benefits from a welcoming central lobby and hallway, multiple WCs and en-suite facilities, two kitchen areas, and a dedicated boiler room, providing excellent operational functionality for medical or professional occupiers.
Externally, the property further benefits from-
• Parking for two cars
• Secure, covered cycle storage for up to five bicycles
• Dedicated bin and recycling storage
Finished to a modern standard, this versatile Class E unit offers bright, well-proportioned accommodation with excellent flexibility for bespoke fit-out, making it an attractive proposition for occupiers alike.
This property is currently under refurbishment and should be available end of Feb 2026. Early viewing is highly recommended to appreciate the potential and adaptability this newly built commercial space has to offer.



.png)