£15,200 pa
(£1,267 pcm)
Office to letRayleigh Road, Leigh-On-Sea, Essex SS9
EPC Rating: D
About this property
Financial & Prof (A2)
760 Approx Sq Ft
Location:
The premises are situated within an established retail parade on the southern side of Rayleigh Road, Eastwood, a short distance from the intersection with Progress Road and close to the A127 (Southend to London Arterial Road)
description:
An attractive Victorian building situated on the busy Rayleigh Road offering a flexible space including offices fronting the road which benefit from a rear courtyard providing several off street parking spaces.
Accommodation
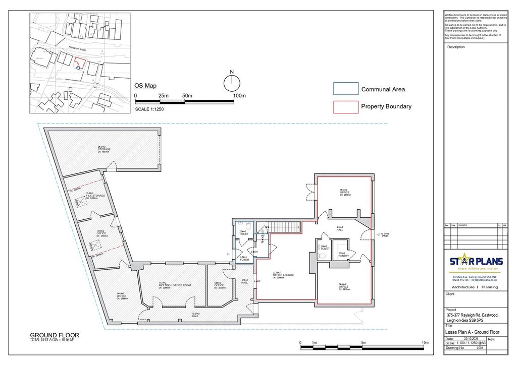
Ground Floor Offices Approx. 760sq. Ft.
Please see floor plan for further detasils
Features
Detached Victorian Building.
Air Conditioning.
Gas Central Heating.
New Fri Lease Available.
Available Immediately.
Kitchen & WC Facilities
Terms
A new fully repairing and insuring lease will be made available at a commencing rent of £15,200. Per annum (VAT not applicable). All other terms by negotiation.
Services
Although we are advised that the property benefits from all mains services, interested parties are recommended to make their own enquiries as to the existence and adequacy of these.
Planning
Interested parties are recommended to make their own enquiries with the Local Planning Authority (Southend Borough Council to ensure that any proposed use is in accordance with current planning policy.
Business Rates
The property appears on the 2023 rating list as a Shop & Premises. Please contact Southend City Council for the current rateable value.
Energy Performance Certificate
88- D expires 6 Feb. 2035
Legal Fees
Each party to bear their own costs.
Viewing
For further information or to arrange a viewing please contact Matt Parsons
The premises are situated within an established retail parade on the southern side of Rayleigh Road, Eastwood, a short distance from the intersection with Progress Road and close to the A127 (Southend to London Arterial Road)
description:
An attractive Victorian building situated on the busy Rayleigh Road offering a flexible space including offices fronting the road which benefit from a rear courtyard providing several off street parking spaces.
Accommodation
Ground Floor Offices Approx. 760sq. Ft.
Please see floor plan for further detasils
Features
Detached Victorian Building.
Air Conditioning.
Gas Central Heating.
New Fri Lease Available.
Available Immediately.
Kitchen & WC Facilities
Terms
A new fully repairing and insuring lease will be made available at a commencing rent of £15,200. Per annum (VAT not applicable). All other terms by negotiation.
Services
Although we are advised that the property benefits from all mains services, interested parties are recommended to make their own enquiries as to the existence and adequacy of these.
Planning
Interested parties are recommended to make their own enquiries with the Local Planning Authority (Southend Borough Council to ensure that any proposed use is in accordance with current planning policy.
Business Rates
The property appears on the 2023 rating list as a Shop & Premises. Please contact Southend City Council for the current rateable value.
Energy Performance Certificate
88- D expires 6 Feb. 2035
Legal Fees
Each party to bear their own costs.
Viewing
For further information or to arrange a viewing please contact Matt Parsons



.png)