£12,000 pa
(£9.51/sq. ft. pa)
Retail premises to let82 Dockhead Street, Saltcoats KA21
1,262 sq. ft
Available immediately
About this property
Prominent high street location
Full retail fit out
Potential for alternative restaurant use subject to consents
Potential for 100% small rates relief
117.28 sq m (1,262 sq ft)
The subjects occupy a terraced position and comprises the ground floor of a three storey and attic tenemental building surmounted by a pitched roof clad in tile, constructed circa 1900s. There are single storey rear extensions, surmounted by a pitched and flat roof. The upper floors of the three storey section are in residential use and are outwith the subjects.
The premises are accessed via a central glazed entrance door and double frontage from Dockhead Street which benefits from an electric security roller shutter and a rear service access/fire escape leading onto Dockhead Place which also benefits from a steel security door.
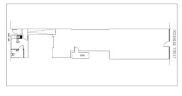
The premises internally comprises sales, storage, staff, tea preparation area and WC.
Prominent high street location
Full retail fit out
Potential for alternative restaurant use subject to consents
Potential for 100% small rates relief
117.28 sq m (1,262 sq ft)
The premises are accessed via a central glazed entrance door and double frontage from Dockhead Street which benefits from an electric security roller shutter and a rear service access/fire escape leading onto Dockhead Place which also benefits from a steel security door.
The premises internally comprises sales, storage, staff, tea preparation area and WC.
Prominent high street location
Full retail fit out
Potential for alternative restaurant use subject to consents
Potential for 100% small rates relief
117.28 sq m (1,262 sq ft)



.png)